Vente
Maison
à
Sigy-en-Bray
140 000 €
Sigy-en-Bray (76780)
iad France - Diane Asselin vous propose: Ancienne Fermette
Nichée sur la commune de Sigy-en-Bray, dans un environnement paisible et bucolique, cette longère de plain-pied, entourée de nombreuses dépendances, prend place sur un vaste terrain de 5 000 m².
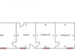
Intérieur:
- Séjour – 30 m²
- Cuisine – 12 m² (insert cheminée)
- 3 Chambres – 11 m² / 10 m² / 7 m²
- Salle de bains /WC – 5 m²
- Chaufferie – 7 m²
Extérieur :
- Terrain – 5 000 m²
- Hangar – 100 m²
- Bâtiment – 95 m² (plus appentis de 30 m²)
- Garage – 17 m² (plus appentis de 19 m²)
- Cave – 20 m²
Les + :
- Maison de plain-pied
- Cadre calme et bucolique
- Charme et authenticité (tomettes, colombages et volets bois)
- Grand terrain (possibilité d'acquérir une surface réduite)
- Nombreuses dépendances
Infos clés :
- Travaux de rénovation à prévoir (huisseries, isolation, remplacement chaudière gaz)
- Chauffage : bois (cheminée insert) et gaz
- Assainissement : individuel
Visite possible 7j/7
Honoraires d'agence à la charge du vendeur.
Information d'affichage énergétique sur ce bien : classe ENERGIE E indice 308 et classe CLIMAT E indice 53. Les informations sur les risques auxquels ce bien est exposé, y compris l'obligation légale de débroussaillement, sont disponibles sur le site Géorisques : http://www.georisques.gouv.fr.
La présente annonce immobilière a été rédigée sous la responsabilité éditoriale de Mme Diane Asselin mandataire indépendant en immobilier (sans détention de fonds), agent commercial de la SAS I@D France immatriculé au RSAC de DIEPPE sous le numéro 939643474, titulaire de la carte de démarchage immobilier pour le compte de la société I@D France SAS.
Mandat : 1941012
Diagnostic de Performance Énergétique (DPE)
Plus d'informations
-
Descriptif
- Nbre. d'étages : 1
- Nbre. de chambres : 3
- Nb. de pièces : 4
-
Superficies
- Superficie terrain : 5000 m²
- Surface habitable : 81 m²
-
Equipement
- Chauffage : gaz radiateur
-
Etat
- Année de construction : 1850
-
Conditions
- Honoraires à charge de : vendeur
Localisation
Contactez nous
Pour plus d'informations sur cette annonce, n'hésitez pas à nous contacter