Vente
Ferme
à
Ciron
360 000 €
Ciron (36300)
iad France - Virginie Muller vous propose: Au coeur du Parc Naturel Régional de la Brenne- A seulement 3h de Paris.
Authentique ferme du 19ème siècle, restaurée avec soin, offrant : une maison chaleureuse et discrète aux répartitions bien pensées. (268m2 habitables), des extérieurs sans vis à vis, 3 belles dépendances pour les plus audacieux de vos projets (plus de 980m2 de plancher surface utile!) et 4 hectares de terrain attenants.
Cette magnifique propriété, jadis ferme du château, nichée dans un écrin de verdure, vous promet un cadre de vie exceptionnel, idéal pour les amoureux de la nature et de l'authenticité.
Ce lieu n'est pas qu'une maison. C'est un havre de paix, une aventure de vie, une opportunité rare. Situé au bout d'une route à travers les bois.
L'histoire reste à écrire, le potentiel immense à mettre en lumière.
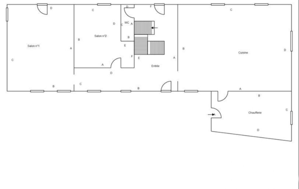
Vous y trouverez en rez-de-chaussée : hall d'entrée portes traversantes, double cuisine aménagée, équipée / salle à manger(55m2), buanderie, wc, chambre, double salon avec poêle à bois et accès extérieur.
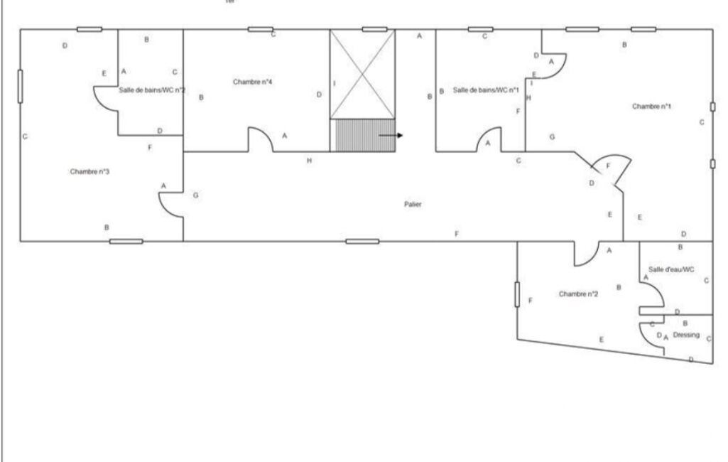
Un bel escalier bois vous mène aux espaces : palier, 4 chambres(27, 12, 13 et 17m2) dont 3 avec sa salle de bains ou d'eau. Tout le monde trouvera sa place.
Belle vue plongeante sur la cour intérieure de 900m2, qui permet de prendre de la hauteur ou de rester rêveur.
Multiples possibilités : cocon familial ( car à 15 minutes de toutes les commodités) et/ou location de tourisme, pour ponctuellement en profiter et rentabiliser. A vous de faire durer ou réécrire son histoire.
nb :Un seul voisin (ponctuel) - piscine sur l'arrière (liner à prévoir)
possibilité de plus ou moins de terres (et bois)- toiture de la grange à réviser, les autres ayant été revues.
Pour les questions techniques et prise de contact, à très bientôt!
Pour respecter la quiétude des lieux, un justificatif de capacité financière récent sera à joindre à votre demande de toute autre information et/ou demande de visite).
Honoraires d'agence à la charge du vendeur.
Information d'affichage énergétique sur ce bien : classe ENERGIE D indice 167 et classe CLIMAT D indice 31. Les informations sur les risques auxquels ce bien est exposé, y compris l'obligation légale de débroussaillement, sont disponibles sur le site Géorisques : http://www.georisques.gouv.fr.
La présente annonce immobilière a été rédigée sous la responsabilité éditoriale de Mme Virginie Muller mandataire indépendant en immobilier (sans détention de fonds), agent commercial de la SAS I@D France immatriculé au RSAC de CHATEAUROUX sous le numéro 948424593, titulaire de la carte de démarchage immobilier pour le compte de la société I@D France SAS.
Mandat : 1924928
Diagnostic de Performance Énergétique (DPE)
Plus d'informations
-
Descriptif
- Nbre. d'étages : 2
- Nbre. de chambres : 5
- Nb. de pièces : 9
-
Superficies
- Superficie terrain : 43028 m²
- Surface habitable : 268 m²
-
Extérieur
- Piscine
-
Equipement
- Chauffage : gaz radiateur
-
Etat
- Année de construction : 1800
-
Conditions
- Honoraires à charge de : vendeur
Localisation
Contactez nous
Pour plus d'informations sur cette annonce, n'hésitez pas à nous contacter