Vente
Appartement
à
Auray
249 900 €
Auray (56400)
iad France - Léa Rieux vous propose: Nouveauté – Appartement 2 chambres avec terrasse, grand garage et cave – Centre-ville d’Auray / Saint Goustan
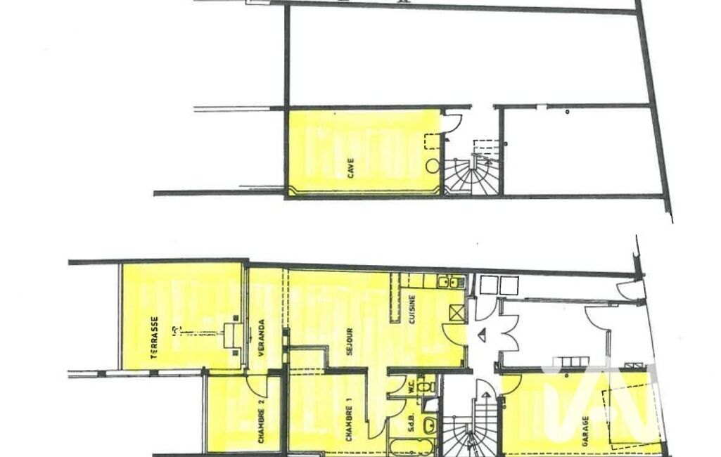
À deux pas du port de Saint Goustan et à une rue de la mairie, découvrez ce bel appartement de 60 m² situé au rez-de-chaussée d’une petite copropriété calme et bien tenue.
Il offre une agréable pièce de vie avec cuisine ouverte, prolongée par une véranda lumineuse donnant directement sur une terrasse de 23 m² : un véritable espace de détente en plein centre-ville.
La partie nuit se compose de deux chambres confortables, d’une salle de bain et d’un WC séparé.
Vous bénéficierez également de deux atouts rares en plein cOEur d’Auray :
un grand garage, pouvant accueillir voiture + moto,
une grande cave en sous-sol, idéale pour le stockage.
Son emplacement privilégié, proche des commerces, services et transports, en fait un bien attractif pour une résidence principale comme pour un investissement locatif.
L’agencement et l’accessibilité se prêtent également très bien à une activité libérale.
Contactez-moi pour organiser une visite !
La presente annonce immobiliere vise 3 lots situés dans une copropriété de 29 lots au total et ne faisant l'objet d'aucune procédure en cours citée à l'article L. 721-1 du code de la construction et de l'habitation. Montant moyen mensuel de charges déclaré par le vendeur : 180.99€ par mois (soit 2171.92 € annuel). Honoraires d'agence à la charge du vendeur.
Information d'affichage énergétique sur ce bien : classe ENERGIE D indice 205 et classe CLIMAT B indice 7. Les informations sur les risques auxquels ce bien est exposé, y compris l'obligation légale de débroussaillement, sont disponibles sur le site Géorisques : http://www.georisques.gouv.fr.
La présente annonce immobilière a été rédigée sous la responsabilité éditoriale de Mme Léa Rieux mandataire indépendant en immobilier (sans détention de fonds), agent commercial de la SAS I@D France immatriculé au RSAC de LORIENT sous le numéro 829871342, titulaire de la carte de démarchage immobilier pour le compte de la société I@D France SAS.
Mandat : 1930184
Diagnostic de Performance Énergétique (DPE)
Plus d'informations
-
Descriptif
- Terrasse
- Nbre. d'étages : 3
- Nbre. de chambres : 2
- Nb. de pièces : 3
-
Loi ALUR
- Copropriété
- Nombre de lots de la copropriété : 29
- Moyenne de la quote part(an) : 2 171.92 €
-
Equipement
- Chauffage : individuel electrique
-
Etat
- Année de construction : 1880
-
Conditions
- Honoraires à charge de : vendeur
-
Superficies
- Surface habitable : 60 m²
Localisation
Contactez nous
Pour plus d'informations sur cette annonce, n'hésitez pas à nous contacter