Vente
Immeuble
à
Strasbourg
1 190 000 €
Strasbourg (67200)
iad France - Pierre-Olivier Gasser vous propose: EMPLACEMENT UNIQUE // TERRASSES // // LIBRE D'OCCUPATION // A RENOVER OU CLES EN MAINS //
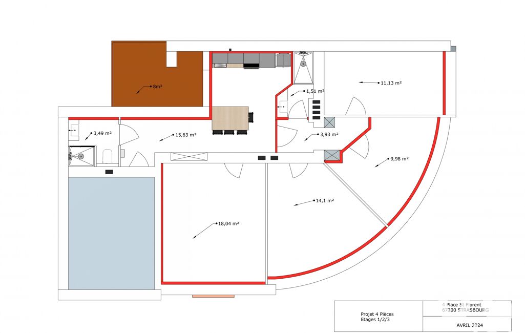
Magnifiquement situé sur la Place Saint Florent tout récemment transformée en square, tombez sous le charme de cet ensemble immobilier des années 1930 et de sa façade d'angle au volume arrondi, réhabilité début 2024.
A présent totalement libre d'occupation, il dispose de plusieurs appartements sur 6 niveaux avec terrasses couvertes.
LES ATOUTS :
- Possibilité d'augmenter la surface habitable
- Terrasses couvertes au calme
- Cour privative
- Larges escaliers permettant sans difficulté l'installation d'un ascenseur
- Une grande cave par appartement
- Cheminée possible
- Double vitrage récent
- Vue sur la Place et l'Eglise Saint Florent mais également sur la Cathédrale, la Forêt Noire et les Institutions Européennes
- L'appartement du rez-de-chaussée étant un ancien local commercial, il pourra si besoin être destiné à un usage d'habitation, commerciale ou mixte.
Différentes configurations sont possibles et ont déjà été étudiées (et chiffrées)
- 6 appartements de 40 à 82 m2
- ou 5 appartements (dont un duplex en dernier étage de 150 m2)
- ou encore la possibilité de faire des co-livings.
Travaux réalisés dans l'immeuble :
- révision toiture (charpente, zinguerie neuve , changement de la noue)
- création de terrasses couvertes
- changement des portes palières et des portes de terrasse.
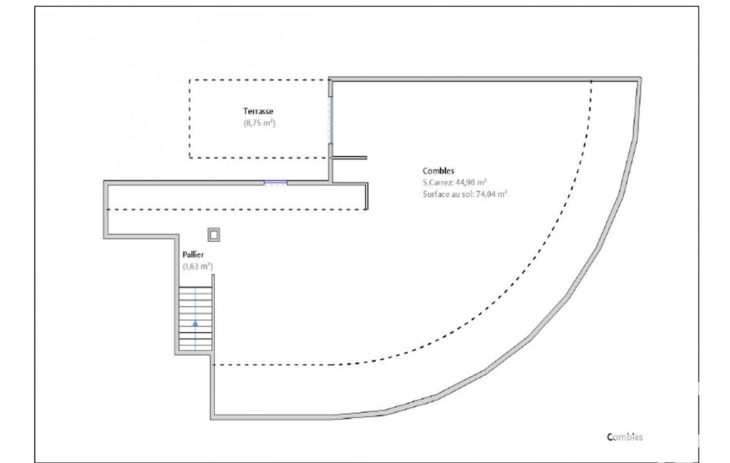
Travaux réalisés dans les combles :
- Création de fenêtres de toits et de terrasses
- Remplacement des fenêtres de lucarnes
- Dépose des conduits de cheminée
- Colonnes électriques en attente
- Accès fibre
Le propriétaire actuel se propose si besoin de vous accompagner dans votre projet et vous fera part de ses nombreuses autres réalisations.
Dossier complet (DPE - photos - plans) et visite sur demande….
Station de bus, boulangerie, square à proximité immédiate.
Arrêt de Tram Rotonde à 500 mètres
Taxe foncière annuelle 3.700 €
A visiter sans tarder !!
Honoraires d'agence à la charge du vendeur.
Information d'affichage énergétique sur ce bien : classe ENERGIE E indice 279 et classe CLIMAT B indice 9. Les informations sur les risques auxquels ce bien est exposé, y compris l'obligation légale de débroussaillement, sont disponibles sur le site Géorisques : http://www.georisques.gouv.fr.
La présente annonce immobilière a été rédigée sous la responsabilité éditoriale de M Pierre-Olivier Gasser mandataire indépendant en immobilier (sans détention de fonds), agent commercial de la SAS I@D France immatriculé au RSAC de STRASBOURG sous le numéro 431474725, titulaire de la carte de démarchage immobilier pour le compte de la société I@D France SAS.
Mandat : 1764759
Diagnostic de Performance Énergétique (DPE)
Plus d'informations
-
Equipement
- Cheminée
- Digicode
- Chauffage : individuel electrique radiateur
- Interphone
-
Descriptif
- Cave
- Nbre. d'étages : 4
-
Etat
- Année de construction : 1932
-
Conditions
- Honoraires à charge de : vendeur
-
Superficies
- Surface habitable : 480 m²
Localisation
Contactez nous
Pour plus d'informations sur cette annonce, n'hésitez pas à nous contacter