Vente
Appartement
à
Hyères
1 148 000 €
Hyères (83400)
iad France - Marie Bonnet vous propose: ROOFTOP D’EXCEPTION – HYÈRES
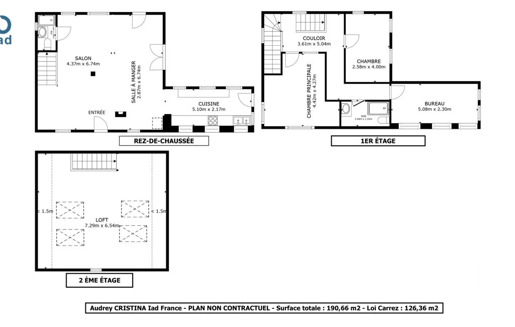
Au DERNIER ÉTAGE d’une RÉSIDENCE DE STANDING sécurisée, découvrez ce SOMPTUEUX ROOFTOP de 138 m² prolongé par 150 m² de TERRASSE aux VUES DÉGAGÉES et à la TRIPLE EXPOSITION, baigné de LUMIÈRE toute la journée.
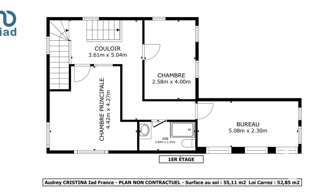
Un VASTE SÉJOUR de 48 m² ouvre sur les EXTÉRIEURS, complété par une CUISINE INDÉPENDANTE (avec possibilité d’OUVERTURE). L’ESPACE NUIT se compose de TROIS CHAMBRES dont une SUITE PARENTALE avec SALLE D’EAU, ainsi qu’une SALLE DE BAINS et deux TOILETTES.
PRESTATIONS HAUT DE GAMME : ASCENSEUR PRIVATIF à clé, VIDÉOSURVEILLANCE, CLIMATISATION RÉVERSIBLE GAINÉE, DOUBLE VITRAGE ALUMINIUM, DOUBLE GARAGE en sous-sol (avec possibilité d’un SECOND).
La FAÇADE de la résidence vient d'être RÉNOVÉE, offrant un aspect NEUF et RAFFINÉ.
Un BIEN RARE, alliant VOLUMES, LUMIÈRE et ÉLÉGANCE.
La presente annonce immobiliere vise 3 lots situés dans une copropriété de 174 lots au total et ne faisant l'objet d'aucune procédure en cours citée à l'article L. 721-1 du code de la construction et de l'habitation. Montant moyen mensuel de charges déclaré par le vendeur : 345.17€ par mois (soit 4142.04 € annuel). Honoraires d'agence à la charge de l'acquéreur. Prix honoraires inclus : 1148000 euros. Prix hors honoraires : 1100000 euros. Honoraires TTC à la charge de l'acquéreur (4,36% du prix du bien hors honoraires) : 48000 euros.
Information d'affichage énergétique sur ce bien : classe ENERGIE C indice 142 et classe CLIMAT A indice 4. Les informations sur les risques auxquels ce bien est exposé, y compris l'obligation légale de débroussaillement, sont disponibles sur le site Géorisques : http://www.georisques.gouv.fr.
La présente annonce immobilière a été rédigée sous la responsabilité éditoriale de Mme Marie Bonnet mandataire indépendant en immobilier (sans détention de fonds), agent commercial de la SAS I@D France immatriculé au RSAC de FREJUS sous le numéro 913028122, titulaire de la carte de démarchage immobilier pour le compte de la société I@D France SAS.
Mandat : 1856821
Diagnostic de Performance Énergétique (DPE)
Plus d'informations
-
Descriptif
- Étage du bien : 4eme
- Terrasse
- Ascenseur
- Nbre. d'étages : 4
- Nbre. de chambres : 3
- Nb. de pièces : 5
-
Equipement
- Alarme
- Câble TV
- Digicode
- Chauffage : individuel electrique radiateur
- Interphone
- Climatisation
-
Loi ALUR
- Copropriété
- Nombre de lots de la copropriété : 174
- Moyenne de la quote part(an) : 4 142.04 €
-
Superficies
- Superficie terrain : 150 m²
- Surface habitable : 138 m²
-
Etat
- Année de construction : 2008
-
Conditions
- Honoraires à charge de : vendeur
Localisation
Contactez nous
Pour plus d'informations sur cette annonce, n'hésitez pas à nous contacter