Vente
Maison
à
Chauvoncourt
314 000 €
Chauvoncourt (55300)
iad France - Estelle Bender vous propose: Immeuble de rapport avec local commercial et appartement – Chauvoncourt (Meuse)
Situé sur la commune de Chauvoncourt, à proximité de Saint-Mihiel, venez découvrir cet ensemble immobilier offrant un fort potentiel, idéal pour un investissement locatif ou un projet mixte habitation / activité professionnelle.
Au rez-de-chaussée :
Une cellule commerciale avec arrière-boutique, comprenant également un bureau, une cuisine et une salle d’eau avec WC.
Une partie habitation complète ce niveau avec un salon et une chambre.
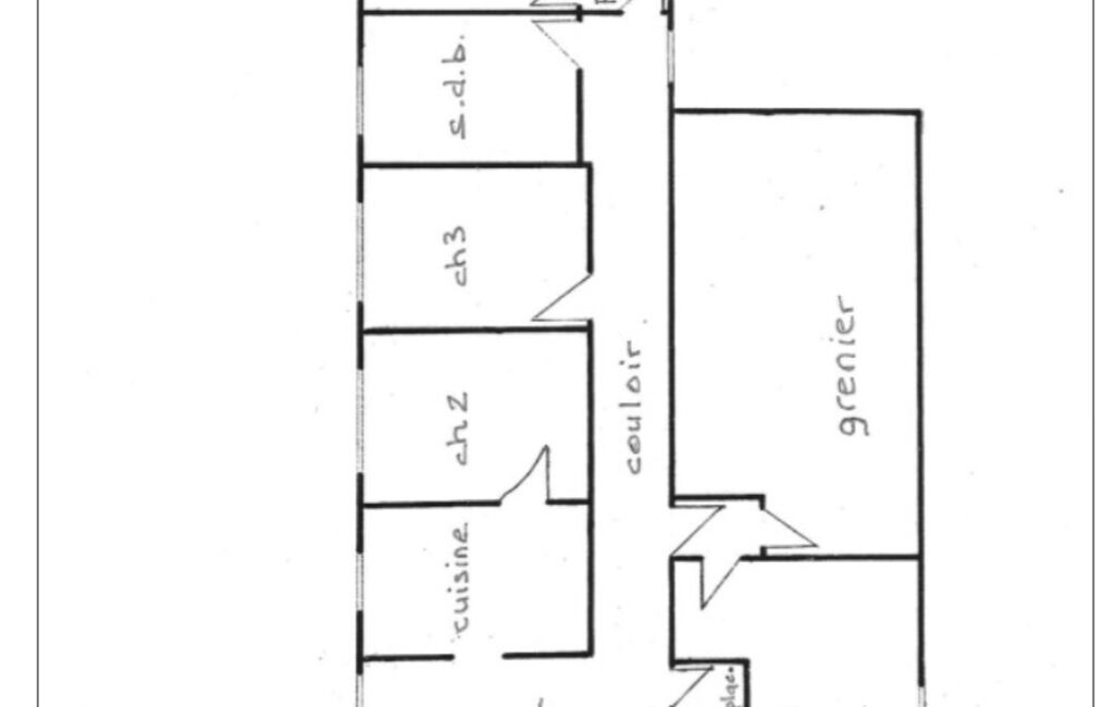
À l’étage :
Un spacieux appartement composé d’un beau séjour double, de quatre chambres, d’une cuisine aménagée, ainsi que d’une salle de bain équipée d’une douche, d’une baignoire et de WC. Belle cave voutée en sous-sol.
Bien offrant de nombreuses possibilités : investissement locatif, activité commerciale avec habitation, ou transformation en plusieurs logements
À visiter sans tarder !
Honoraires d'agence à la charge du vendeur.
Information d'affichage énergétique sur ce bien : classe ENERGIE D indice 191 et classe CLIMAT D indice 36. Les informations sur les risques auxquels ce bien est exposé, y compris l'obligation légale de débroussaillement, sont disponibles sur le site Géorisques : http://www.georisques.gouv.fr.
La présente annonce immobilière a été rédigée sous la responsabilité éditoriale de Mme Estelle Bender mandataire indépendant en immobilier (sans détention de fonds), agent commercial de la SAS I@D France immatriculé au RSAC de BAR LE DUC sous le numéro 501616825, titulaire de la carte de démarchage immobilier pour le compte de la société I@D France SAS.
Mandat : 1986936
Diagnostic de Performance Énergétique (DPE)
Plus d'informations
-
Descriptif
- Cave
- Terrasse
- Nbre. d'étages : 1
- Nbre. de chambres : 5
- Nb. de pièces : 15
-
Superficies
- Superficie terrain : 639 m²
- Surface habitable : 219 m²
-
Equipement
- Chauffage : gaz radiateur
-
Conditions
- Honoraires à charge de : vendeur
Localisation
Contactez nous
Pour plus d'informations sur cette annonce, n'hésitez pas à nous contacter