Vente
Appartement
à
Clichy
1 236 500 €
Clichy (92110)
iad France - Sarah Rozière (06 99 86 19 42) vous propose : Appartement 6 pièces avec vaste terrasse – Clichy – Résidence Topaze
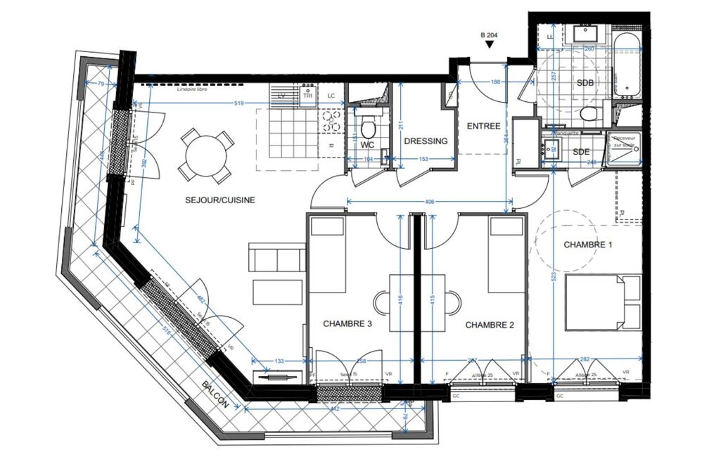
L’appartement présenté est un remarquable T6 de 121,84 m² environ habitables, situé au 6e étage. Il se compose d’une entrée de 5,22 m² environ, d’un séjour-cuisine spacieux et lumineux de 34,15 m² environ, de cinq chambres aux surfaces équilibrées (12,60 m² environ, 13,29 m² environ, 9,06 m² environ, 10,77 m² environ et 10,73 m² environ), d’une salle de bains de 5,29 m² environ, d’une salle d’eau de 3,56 m² environ, de deux WC indépendants (2,14 m² environ et 2,78 m² environ) ainsi que de deux dégagements de 4,29 m² environ et 7,96 m² environ. Un balcon de 7,68 m² environ et une vaste terrasse de 41,41 m² environ offrent un prolongement extérieur exceptionnel, idéal pour profiter de la lumière, du calme et des vues dégagées du dernier étage. L’agencement fluide et la générosité des volumes garantissent un confort optimal pour une famille, un besoin d’espace ou un projet haut de gamme.
Découvrez Topaze, une résidence située au cOEur d’un quartier résidentiel en pleine transformation aux portes de Paris. Entre les berges de Seine, les grands parcs paysagers et le centre-ville animé, cette adresse offre un cadre de vie exceptionnel, mêlant modernité, élégance architecturale et proximité immédiate des transports, des commerces, des établissements scolaires et des équipements culturels. Les façades en pierre claire et les lignes épurées illustrent l’identité contemporaine et soignée de la résidence.
L’architecture de Topaze se distingue par ses façades minérales, ses garde-corps couleur taupe et ses larges baies vitrées qui assurent une luminosité naturelle abondante. Les bâtiments sont organisés autour d’un jardin paysager central, pensé comme un espace de respiration au cOEur de la résidence. Terrasse et balcon prolongent agréablement l'appartement, tandis que la végétalisation abondante, présente jusque sur les toitures, contribue à un cadre de vie apaisant et harmonieux.
La résidence offre des prestations haut de gamme adaptées aux attentes contemporaines. Les sols sont habillés de parquet contrecollé dans les pièces principales, le carrelage équipe les cuisines et pièces d’eau, et l’isolation acoustique est renforcée. Les menuiseries bénéficient d’un double vitrage et de volets roulants électriques. Les salles de bains sont aménagées avec meuble vasque, sèche-serviettes, pare-douche, faïence de qualité et éclairage soigné. L’accès sécurisé comprend digicode, visiophone et badge Vigik. Les résidents disposent également de locaux vélos, de places de stationnement en sous-sol et du confort d’un chauffage collectif urbain.
Le quartier offre un environnement privilégié à quelques minutes à pied des bords de Seine, du Parc des Impressionnistes, du centre-ville et de ses nombreux commerces. Clichy bénéficie d’une vie locale dynamique avec ses marchés, sa piscine, ses équipements sportifs et ses établissements scolaires variés. La station de métro Mairie de Clichy, les gares d’Asnières-sur-Seine et de Clichy-Levallois ainsi que les nombreuses lignes de bus assurent une connexion rapide avec Paris, La Défense et les grands pôles d’activité.
En limite du 17e arrondissement, Clichy possède un fort potentiel de valorisation grâce à ses projets urbains récents, à son attractivité croissante et à son emplacement stratégique. La résidence Topaze constitue une opportunité d’acquérir un bien familial rare, spacieux et lumineux dans un secteur recherché et en plein essor.
Cet appartement T6 avec grande terrasse, au sein d’une résidence élégante et sécurisée, représente une occasion unique d’accéder à un bien d’exception dans les Hauts-de-Seine. Il allie espace, confort, luminosité et situation stratégique pour une véritable valeur patrimoniale.
Contactez-moi dès aujourd’hui pour plus d’informations.
Honoraires d’agence à la charge du vendeur. Bien non soumis au DPE. Les informations sur les risques auxquels ce bien est exposé sont disponibles sur le site Géorisques : www.georisques.gouv.fr. La présente annonce immobilière a été rédigée sous la responsabilité éditoriale de Mlle Sarah Rozière EI (ID 83696), mandataire indépendant en immobilier (sans détention de fonds), agent commercial de la SAS I@D France immatriculé au RSAC de Clermont-Ferrand sous le numéro 978616993, titulaire de la carte de démarchage immobilier pour le compte de la société I@D France SAS.
Retrouvez tous nos biens sur notre site internet. www.iadfrance.fr
Mandat : 1822719-29
Diagnostic de Performance Énergétique (DPE)
Plus d'informations
-
Descriptif
- Cave
- Étage du bien : 6eme
- Terrasse
- Ascenseur
- Nbre. de chambres : 5
- Nb. Parking : 1
- Nb. de pièces : 6
-
Equipement
- Alarme
- Digicode
- Interphone
-
Conditions
- Honoraires à charge de : vendeur
-
Superficies
- Surface habitable : 122 m²
Localisation
Contactez nous
Pour plus d'informations sur cette annonce, n'hésitez pas à nous contacter