Vente
Appartement
à
Clouange
204 000 €
Clouange (57185)
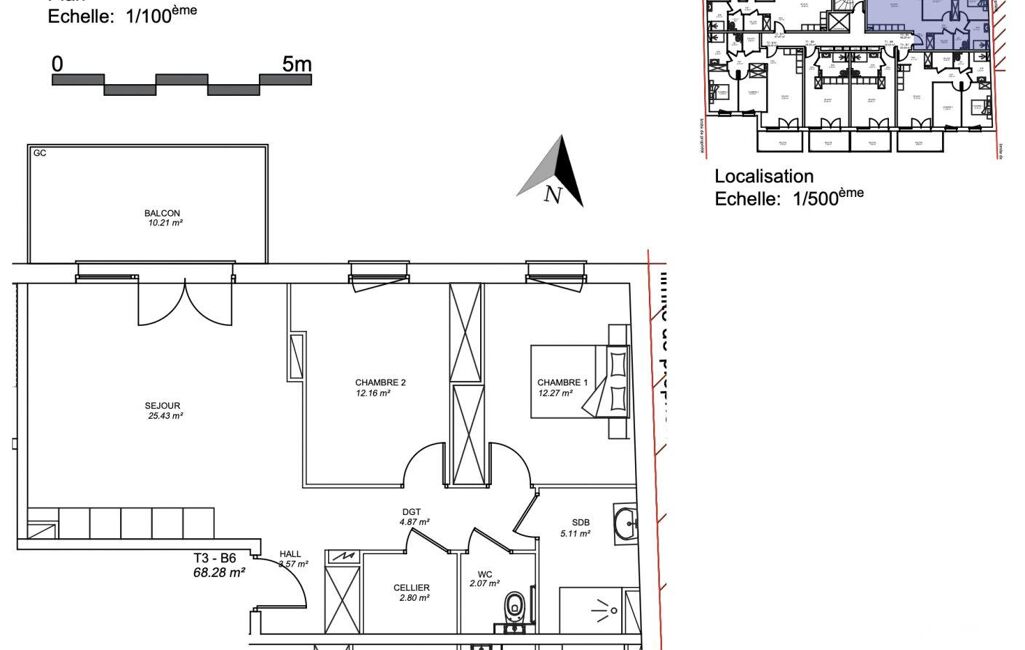
iad France - Antonio Pracella (06 73 95 56 54) vous propose : VEFA CLOUANGE - T3 NEUF DE 68 M² environ AVEC TERRASSE EN R+1
Appartement T3 de 68,28 m² environ + un balcon de 10,21 m² environ
Craquez pour ce spacieux T3 en VEFA au 1er étage d'une résidence neuve à Clouange.
Des volumes généreux et une distribution optimisée pour un confort de vie au quotidien.
Le bien :
Grand séjour lumineux de plus de 25 m2 environ avec cuisine ouverte
2 belles chambres de plus de 12m2 environ
Salle de bain de plus de 5 m2 environ
WC séparé
Cellier de 2,80 m2 environ
Stationnement disponible en option
Volets motorisés
Ascenseur
Isolation Phonique et Thermique
Performance énergétique (RE2020, chauffage au sol par pompe à chaleur)
Éligible PTZ (Prêt à Taux Zéro)
Frais de notaire réduits (3% au lieu de 8%)
Idéal pour :
Primo-accédants avec PTZ
Jeunes familles
Frontaliers Luxembourg
Contactez-moi pour la notice descriptive et parler de votre projet immobilier.
Honoraires d’agence à la charge du vendeur. Bien non soumis au DPE. Les informations sur les risques auxquels ce bien est exposé sont disponibles sur le site Géorisques : www.georisques.gouv.fr. La présente annonce immobilière a été rédigée sous la responsabilité éditoriale de M. Antonio Pracella EI (ID 81602), mandataire indépendant en immobilier (sans détention de fonds), agent commercial de la SAS I@D France immatriculé au RSAC de Thionville sous le numéro 402788640, titulaire de la carte de démarchage immobilier pour le compte de la société I@D France SAS.
Retrouvez tous nos biens sur notre site internet. www.iadfrance.fr
Mandat : 1714607-5
Diagnostic de Performance Énergétique (DPE)
Plus d'informations
-
Descriptif
- Étage du bien : 1er
- Terrasse
- Ascenseur
- Nbre. d'étages : 3
- Nb. de pièces : 3
-
Equipement
- Câble TV
- Digicode
- Interphone
-
Conditions
- Honoraires à charge de : vendeur
-
Superficies
- Surface habitable : 68 m²
Localisation
Contactez nous
Pour plus d'informations sur cette annonce, n'hésitez pas à nous contacter