Vente
Maison de ville
à
Les Sables-d'Olonne
589 100 €
Les Sables-d'Olonne (85100)
iad France - Sonia RACAUD vous propose: Maison de Caractère aux Sables-d'Olonne - Rénovée avec Goût
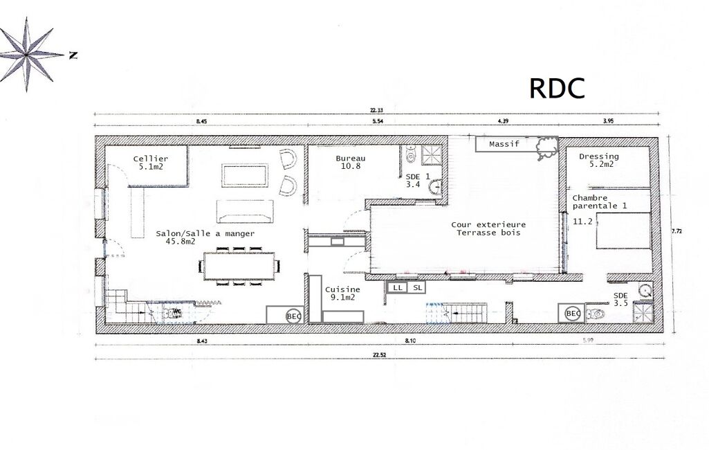
Découvrez cette magnifique maison de 137m² située dans le quartier bel air, prisé des Sablais pour sa proximité au marché Arago à 450m, au centre ville et a sa grande plage a 900m.
Construite en 1930 et récemment rénovée avec des matériaux de qualité, cette demeure allie le charme de l'ancien et le confort moderne.
Vous serez séduit par sa cour intime, véritable cOEur de la maison, qui relie harmonieusement toutes les pièces du rez-de-chaussée.
À l'intérieur, un salon lumineux offre un espace de vie convivial, tandis que le bureau vous permettra de travailler en toute tranquillité. La cuisine est neuve et équipée ( four, plaque électrique et hotte)
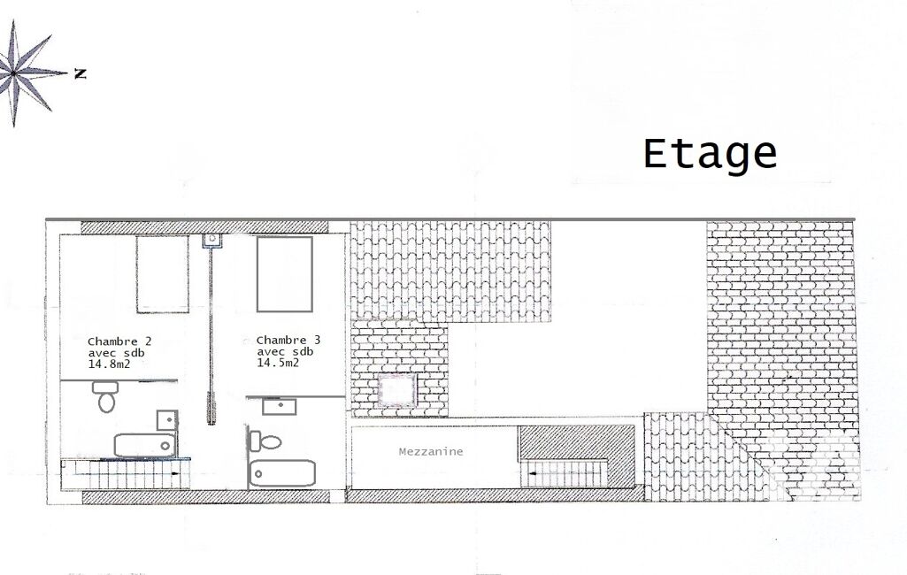
La maison se compose de 3 chambres de grande taille, chacune composée d'une salle d'eau moderne avec WC.
Une au rez de chaussé qui possède également un dressing et 2 a l'étage, une 4 ème chambre d'appoint est également possible au niveau de la mezzanine.
Les atouts de cette maison ne s'arrêtent pas là : bénéficiant d'un système de chauffage récent par pompe à chaleur air/air à tous les niveaux, sa consommation énergétique est parfaitement maîtrisée.
Bien qu'il n'y ait pas de garage, la maison dispose d'un cellier de 5 m² situé à l'entrée.
Cet espace vous permettra de ranger facilement vos vélos ainsi que vos accessoires de plage (planche de surf, sièges, bouée...)
Ne manquez pas l'opportunité d'acquérir cette superbe maison aux Sables-d'Olonne, alliant charme, confort et proximité des commodités.
Honoraires d'agence à la charge du vendeur.
Information d'affichage énergétique sur ce bien : classe ENERGIE B indice 101 et classe CLIMAT A indice 3. Les informations sur les risques auxquels ce bien est exposé, y compris l'obligation légale de débroussaillement, sont disponibles sur le site Géorisques : http://www.georisques.gouv.fr.
La présente annonce immobilière a été rédigée sous la responsabilité éditoriale de Mme Sonia RACAUD mandataire indépendant en immobilier (sans détention de fonds), agent commercial de la SAS I@D France immatriculé au RSAC de LA ROCHE SUR YON sous le numéro 878930809, titulaire de la carte de démarchage immobilier pour le compte de la société I@D France SAS.
Mandat : 1944856
Diagnostic de Performance Énergétique (DPE)
Plus d'informations
-
Descriptif
- Nbre. d'étages : 1
- Nbre. de chambres : 3
- Nb. de pièces : 6
-
Superficies
- Superficie terrain : 159 m²
- Surface habitable : 137 m²
-
Etat
- Année de construction : 1930
-
Conditions
- Honoraires à charge de : vendeur
Localisation
Contactez nous
Pour plus d'informations sur cette annonce, n'hésitez pas à nous contacter