Vente
Immeuble
à
Loriol-sur-Drôme
165 000 €
Loriol-sur-Drôme (26270)
iad France - Anne-Laure Bonnefois vous propose: LORIOL SUR DRÔME – Immeuble de RAPPORT avec dépendance en plein centre-ville | Idéal INVESTISSEURS
Situé au cOEur du centre-ville, cet IMMEUBLE de rapport représente une opportunité rare pour les investisseurs à la recherche d’un bien à fort potentiel LOCATIF.
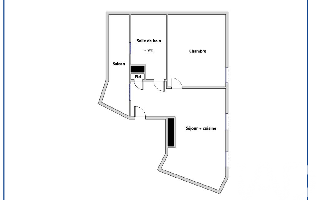
L’immeuble se compose de 3 appartements de type T3, répartis comme suit :
Rez-de-chaussée : T3 de 53 m² (DPE D)
1er étage : T3 de 57 m² (DPE D)
2ème et dernier étage : T3 de 55 m² (DPE D)
Chaque logement bénéficie de menuiseries en DOUBLE VITRAGE et de chauffage individuel par radiateurs ÉLECTRIQUES, offrant confort et simplicité de gestion locative.
👉 Atout majeur : les trois appartements sont actuellement LIBRES de toute occupation, vous permettant d’optimiser immédiatement votre STRATÉGIE locative et de maximiser le RENDEMENT.
Une DÉPENDANCE non attenante vient compléter ce bien, idéale pour du stockage ou une valorisation complémentaire.
Une belle OPPORTUNITÉ à saisir pour investisseurs !
Honoraires d'agence à la charge du vendeur.
Information d'affichage énergétique sur ce bien : classe ENERGIE D indice 249 et classe CLIMAT B indice 8. Les informations sur les risques auxquels ce bien est exposé, y compris l'obligation légale de débroussaillement, sont disponibles sur le site Géorisques : http://www.georisques.gouv.fr.
La présente annonce immobilière a été rédigée sous la responsabilité éditoriale de Mme Anne-Laure Bonnefois mandataire indépendant en immobilier (sans détention de fonds), agent commercial de la SAS I@D France immatriculé au RSAC de ROMANS sous le numéro 790480081, titulaire de la carte de démarchage immobilier pour le compte de la société I@D France SAS.
Mandat : 2015555
Diagnostic de Performance Énergétique (DPE)
Plus d'informations
-
Descriptif
- Cave
-
Conditions
- Honoraires à charge de : vendeur
-
Superficies
- Surface habitable : 165 m²
Localisation
Contactez nous
Pour plus d'informations sur cette annonce, n'hésitez pas à nous contacter