Vente
Maison
à
Lalinde
177 000 €
Lalinde (24150)
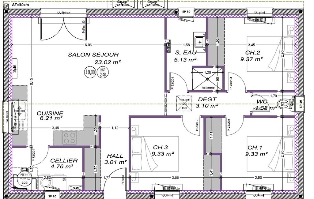
Les MAISONS AURA, constructeur de maisons depuis 1985, vous propose le modèle LIMA à LALINDE, proche zone commerciale, sur son terrain de 900 m². Comme l’ensemble des plans de la gamme Access’Aura, la maison LIMA a été pensée afin d’optimiser les coûts de construction, tout en offrant 3 chambres pour satisfaire les demandes de nombreuses familles. La mission est donc réussie avec ce plan proposant, notamment, un placard d’entrée, une cuisine ouverte et un cellier. Le prix comprend : la maison avec l'adaptation , le prix du terrain, les frais d'acte, la viabilité et les VRD.
Mandat : PH710
Diagnostic de Performance Énergétique (DPE)
Plus d'informations
-
Descriptif
- Nbre. de chambres : 3
- Nb. de pièces : 5
-
Superficies
- Superficie terrain : 900 m²
- Surface habitable : 75 m²
-
Etat
- État general : Neuf
-
Conditions
- Honoraires à charge de : vendeur
Localisation
Contactez nous
Pour plus d'informations sur cette annonce, n'hésitez pas à nous contacter
Les Maisons Aura de Bergerac
Annonce 61 /
79403