Vente
Maison de maître
à
Jouy-en-Josas
1 220 000 €
Jouy-en-Josas (78350)
iad France - Christine Laurent-Etlicher vous propose: SUPERBE MAISON D'ARCHITECTE AVEC PISCINE - TERRAIN DE 1384 m2 - PROCHE GARE, COMMERCES ET FORÊT
UNE LOCALISATION PRISÉE
Dans le quartier prisé de Jouy centre route des Loges, vous serez à deux pas de la gare (ligne V) qui vous permettra de rejoindre rapidement Versailles ou Massy Palaiseau (RER B, TGV et future ligne 18). Vous serez également à quelques minutes du plateau de Saclay, de ses écoles prestigieuses (Polytechnique, HEC, Centrale, Supélec) et de son pôle Innovation (Sanofi, Eurofins, Danone, Safran, Thales...).
DES PRESTATIONS HAUT DE GAMME
- Un magnifique terrain paysager et planté d'arbres fruitiers.
- A l'arrière, une grande terrasse et une belle piscine invitent à la détente et vous promettent des moments privilégiés en famille ou entre amis.
- Un double box pour garer vos véhicules ou servir de stockage
- Une cour permettant de stationner plusieurs véhicules, avec une borne électrique.
- Un portail automatique, pour un accès facilité.
DES VOLUMES GÉNÉREUX
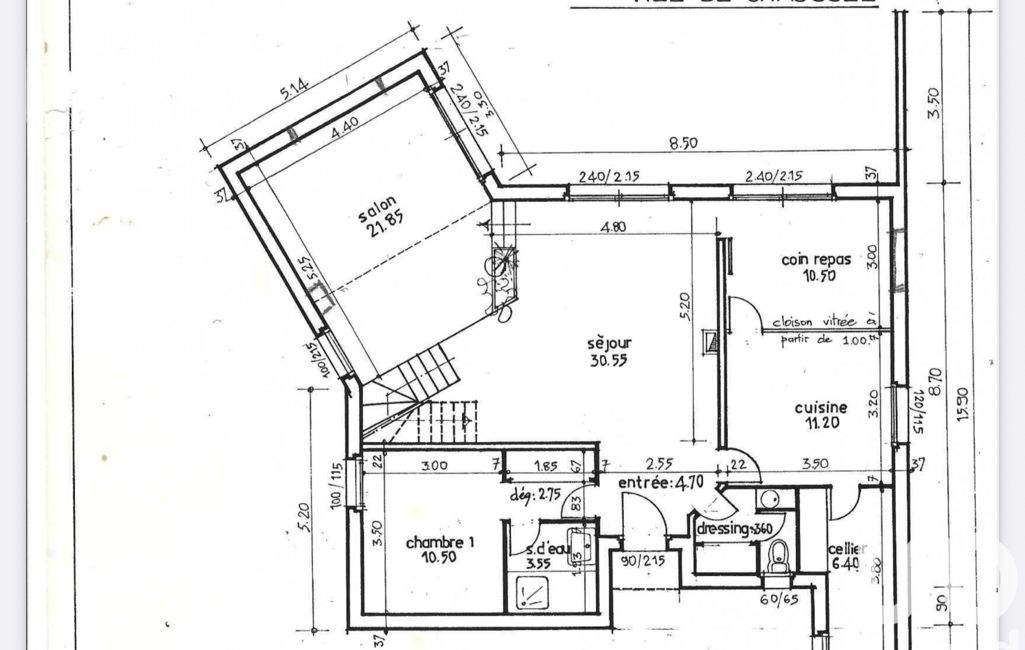
- Un très beau séjour de plus de 50 m2, avec sa cheminée, son salon au toit cathédrale et ses larges baies vitrées ouvrant sur le jardin.
- Une grande cuisine avec son espace repas (plus de 20 m2) et un cellier.
- Une suite parentale en rez-de-chaussée, pour une vie de plain-pied.
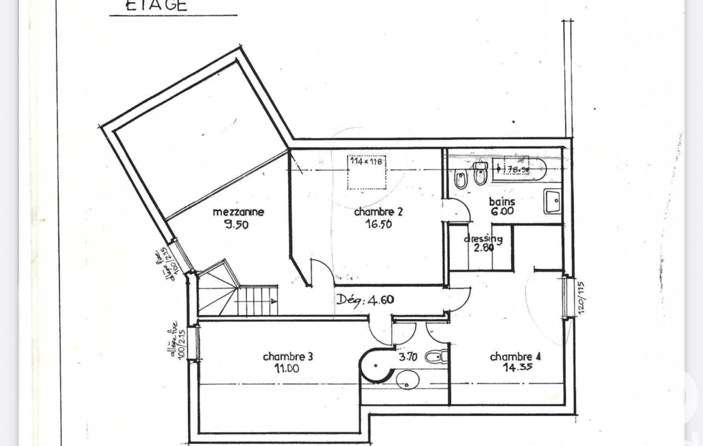
- A l'étage, une mezzanine surplombant le salon et pouvant servir de bureau, salle de jeux ou chambre supplémentaire, une deuxième suite parentale de 25 m2 et deux autres chambres ouvrant sur une salle d'eau.
LES POINTS FORTS
- Un terrain de 1384 m2.
- Des extérieurs magnifiques avec terrasse et piscine.
- Quatre (voire cinq) chambres.
- Des prestations haut de gamme.
Cette maison aux lignes résolument modernes, implantée dans un écrin de verdure mais proche de toutes les commodités, saura vous séduire. Envie de la visiter? Appelez-moi vite!
Honoraires d'agence à la charge du vendeur.
Information d'affichage énergétique sur ce bien : classe ENERGIE C indice 139 et classe CLIMAT C indice 28. Les informations sur les risques auxquels ce bien est exposé, y compris l'obligation légale de débroussaillement, sont disponibles sur le site Géorisques : http://www.georisques.gouv.fr.
La présente annonce immobilière a été rédigée sous la responsabilité éditoriale de Mme Christine Laurent-Etlicher mandataire indépendant en immobilier (sans détention de fonds), agent commercial de la SAS I@D France immatriculé au RSAC de Evry sous le numéro 425142486, titulaire de la carte de démarchage immobilier pour le compte de la société I@D France SAS.
Mandat : 1843815
Diagnostic de Performance Énergétique (DPE)
Plus d'informations
-
Descriptif
- Terrasse
- Nbre. d'étages : 1
- Nbre. de chambres : 5
- Nb. de pièces : 8
-
Equipement
- Alarme
- Cheminée
- Chauffage : gaz
-
Superficies
- Superficie terrain : 1384 m²
- Surface habitable : 194 m²
-
Extérieur
- Piscine
-
Conditions
- Honoraires à charge de : vendeur
Localisation
Contactez nous
Pour plus d'informations sur cette annonce, n'hésitez pas à nous contacter