Vente
Maison
à
Houdilcourt
136 500 €
Houdilcourt (08190)
iad France - Alexandra Mautrait vous propose: Cette ancienne Longère avec beaucoup de potentiel vous offrira toutes les possibilités sur une parcelle de 1500m2 environ.
Que vous soyez Investisseurs amateurs de rénovations souhaitant créer plusieurs logements ou une famille souhaitant créer la maison de vos rêves.
Ce projet est viabilisé.
Pour plus de renseignements n'hésitez pas à me contacter par téléphone et ne tardez pas à venir visiter .
Honoraires d'agence à la charge du vendeur.
Bien non soumis au DPE. Les informations sur les risques auxquels ce bien est exposé, y compris l'obligation légale de débroussaillement, sont disponibles sur le site Géorisques : http://www.georisques.gouv.fr.
La présente annonce immobilière a été rédigée sous la responsabilité éditoriale de Mme Alexandra Mautrait mandataire indépendant en immobilier (sans détention de fonds), agent commercial de la SAS I@D France immatriculé au RSAC de TROYES sous le numéro 518267000, titulaire de la carte de démarchage immobilier pour le compte de la société I@D France SAS.
Mandat : 1926364
Diagnostic de Performance Énergétique (DPE)
Plus d'informations
-
Conditions
- Honoraires à charge de : vendeur
-
Descriptif
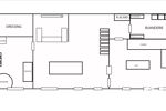
- Nb. de pièces : 5
-
Superficies
- Surface habitable : 300 m²
Localisation
Contactez nous
Pour plus d'informations sur cette annonce, n'hésitez pas à nous contacter