Vente
Maison
à
Guéreins
285 000 €
Guéreins (01090)
iad France - Myriam Devesa (06 02 45 17 39) vous propose : La résidence LES JARDINS DE GUÉREINS, imaginée par AX'HOME, est une copropriété à taille humaine avec 1 seul bâtiment d'un étage, 8 appartements et 4 maisons individuelles. A seulement 30 minutes de Lyon, à 2 min de Belleville, ville dynamique qui séduit par son équilibre parfait entre ville et campagne, à 2 minutes de l'autoroute, des commerces… LES JARDINS DE GUÉREINS vous proposent cette belle villa lumineuse et fonctionnelle avec sa pièce de vie ouverte sur le jardin, son grand garage, ses stationnements et sa pompe à chaleur. Vous pourrez avoir le choix des finitions (carrelage, faïence, peinture...). Frais de notaire réduits.
Honoraires d’agence à la charge du vendeur. Bien non soumis au DPE. Les informations sur les risques auxquels ce bien est exposé sont disponibles sur le site Géorisques : www.georisques.gouv.fr. La présente annonce immobilière a été rédigée sous la responsabilité éditoriale de Mme Myriam Devesa EI (ID 69755), mandataire indépendant en immobilier (sans détention de fonds), agent commercial de la SAS I@D France immatriculé au RSAC de Villefranche - Tarare sous le numéro 447789744, titulaire de la carte de démarchage immobilier pour le compte de la société I@D France SAS.
Retrouvez tous nos biens sur notre site internet. www.iadfrance.fr
Mandat : 1979350-5
Diagnostic de Performance Énergétique (DPE)
Plus d'informations
-
Descriptif
- Terrasse
- Nbre. d'étages : 1
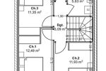
- Nbre. de chambres : 3
- Nb. de pièces : 4
-
Equipement
- Digicode
- Interphone
-
Superficies
- Superficie terrain : 205 m²
- Surface habitable : 93 m²
-
Etat
- Année de construction : 2026
-
Conditions
- Honoraires à charge de : vendeur
Localisation
Contactez nous
Pour plus d'informations sur cette annonce, n'hésitez pas à nous contacter