Vente
Maison
à
Longperrier
385 000 €
Longperrier (77230)
iad France - Sonia Lechan vous propose: Maison individuelle idéalement située dans l’un des quartiers les plus prisés de Longperrier, au calme et à l’abri des regards, offrant un cadre de vie paisible et soigné.
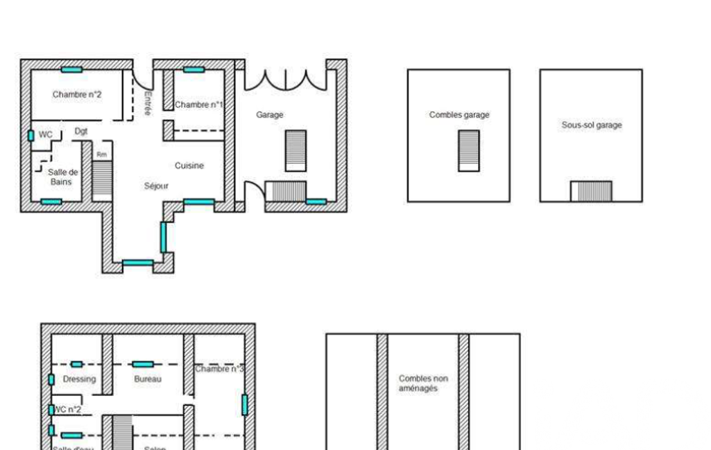
Dès l’entrée, dotée de rangements, vous découvrez une belle pièce de vie d’environ 38 m². Sa hauteur cathédrale apporte volume et luminosité, tandis que le poêle à granulés crée une atmosphère chaleureuse, en complément d’un chauffage électrique par panneaux rayonnants.
La cuisine ouverte, entièrement aménagée et équipée, s’intègre harmonieusement à l’espace et invite à la convivialité.
La maison propose une vie de plain-pied très appréciable avec deux chambres disposant de rangements, une salle de bains et un WC indépendant.
À l’étage, une mezzanine dessert un palier pouvant accueillir un espace bureau ou salle de jeux, une chambre confortable d’environ 14 m², une salle d’eau, un espace dressing ainsi qu’un WC séparé.
L’ensemble est parfaitement entretenu, aucun travaux à prévoir.
À l’extérieur, le terrain clos et arboré d’environ 540 m² offre intimité et sérénité. Une terrasse carrelée, agrémentée d’une pergola bioclimatique, prolonge agréablement les espaces de vie.
La maison dispose également d’un double garage de 30 m² avec porte motorisée, d’une grande cave et d’un grenier, offrant de nombreuses solutions de rangement.
Les commodités sont accessibles à proximité immédiate : écoles maternelle et élémentaire, commerces, services médicaux et transports.
La gare de Saint-Mard, située à environ 20 minutes, permet des liaisons rapides vers Paris Gare du Nord. Les principaux axes routiers (RN2, A104, A1) ainsi que l’aéroport Roissy Charles-de-Gaulle se trouvent à environ 20 minutes, sans nuisance sonore.
Un bien rare sur le secteur, réunissant emplacement recherché, volumes généreux, confort moderne et qualité de vie.
Une visite s’impose pour en apprécier pleinement tout le potentiel.
Honoraires d'agence à la charge du vendeur.
Information d'affichage énergétique sur ce bien : classe ENERGIE D indice 240 et classe CLIMAT B indice 7. Les informations sur les risques auxquels ce bien est exposé, y compris l'obligation légale de débroussaillement, sont disponibles sur le site Géorisques : http://www.georisques.gouv.fr.
La présente annonce immobilière a été rédigée sous la responsabilité éditoriale de Mme Sonia Lechan mandataire indépendant en immobilier (sans détention de fonds), agent commercial de la SAS I@D France immatriculé au RSAC de MEAUX sous le numéro 913079828, titulaire de la carte de démarchage immobilier pour le compte de la société I@D France SAS.
Mandat : 1935263
Diagnostic de Performance Énergétique (DPE)
Plus d'informations
-
Descriptif
- Nbre. d'étages : 2
- Nbre. de chambres : 4
- Nb. de pièces : 6
-
Equipement
- Câble TV
- Chauffage : electrique
-
Superficies
- Superficie terrain : 540 m²
- Surface habitable : 128 m²
-
Etat
- Année de construction : 1985
-
Conditions
- Honoraires à charge de : vendeur
Localisation
Contactez nous
Pour plus d'informations sur cette annonce, n'hésitez pas à nous contacter