Vente
Appartement
à
Paris
1 215 000 €
Paris (75002)
iad France - Jonathan Khalfa vous propose: Appartement 3 pièces de 76m2 - Paris 2ème - Village Montorgueil
Au coeur du quartier touristique et piéton de Montorgueil, idéalement situé dans un bel immeuble entretenu de style Art Déco datant de 1930 et rénové en 2000, au sein d'une copropriété très sécurisée avec gardien, badges VIGIK et vidéo surveillance.
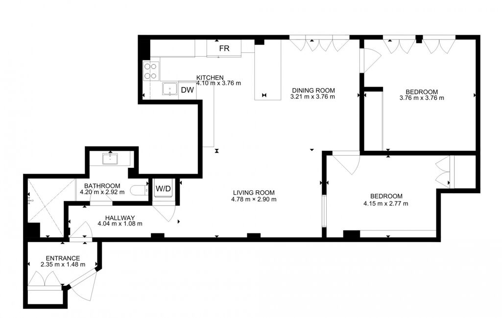
Je vous présente cet appartement 3 pièces de 75.40m2 Carrez parfaitement agencé au 3ème étage par ASCENSEUR et donnant sur cour calme intérieure en exposition Ouest.
Totalement RENOVE EN 2022 avec des matériaux de qualité, il se compose d'un vaste séjour de 43,65 m2 avec cuisine ouverte équipée, de deux chambres spacieuses et CALMES respectivement de 12,62 m2 et 13,77 m2 avec espaces de rangements intégrés, d'une salle d'eau avec toilettes, d’un espace dédié à la machine à laver et sèche linge, ainsi que d'un sas d'entrée privatif avec placard.
Ce bien bénéficie d'un excellent diagnostic énergétique (C), d’une CLIMATISATION ainsi que de nombreux rangements sur mesure.
Un local à vélo sécurisé est disponible dans la copropriété.
Cave et/ou un parking sont régulièrement disponibles au sein de l'immeuble.
Eau chaude : Chauffe eau électrique individuel
Chauffage collectif : Gaz, Radiateurs
Charges : 1 050 € /trimestre ( eau froide et chauffage inclus)
Taxe foncière : 1 269 €
Revenus générés en 2025 à hauteur de 27.000€ en location saisonnière sur les 90 jours autorisés.
Un bien rare offrant calme, confort et emplacement privilégié au sein d’un des quartiers les plus prisés de Paris.
La presente annonce immobiliere vise 1 lot situé dans une copropriété de 258 lots au total et ne faisant l'objet d'aucune procédure en cours citée à l'article L. 721-1 du code de la construction et de l'habitation. Montant moyen mensuel de charges déclaré par le vendeur : 350€ par mois (soit 4200 € annuel). Honoraires d'agence à la charge du vendeur.
Information d'affichage énergétique sur ce bien : classe ENERGIE C indice 117 et classe CLIMAT C indice 11. Les informations sur les risques auxquels ce bien est exposé, y compris l'obligation légale de débroussaillement, sont disponibles sur le site Géorisques : http://www.georisques.gouv.fr.
La présente annonce immobilière a été rédigée sous la responsabilité éditoriale de M Jonathan Khalfa mandataire indépendant en immobilier (sans détention de fonds), agent commercial de la SAS I@D France immatriculé au RSAC de Paris sous le numéro 909893380, titulaire de la carte de démarchage immobilier pour le compte de la société I@D France SAS.
Mandat : 1879950
Diagnostic de Performance Énergétique (DPE)
Plus d'informations
-
Descriptif
- Étage du bien : 3eme
- Gardien
- Ascenseur
- Nbre. d'étages : 8
- Nbre. de chambres : 2
- Nb. de pièces : 3
-
Equipement
- Alarme
- Câble TV
- Digicode
- Chauffage : collectif gaz radiateur
- Interphone
- Climatisation
-
Loi ALUR
- Copropriété
- Nombre de lots de la copropriété : 258
- Moyenne de la quote part(an) : 4 200 €
-
Etat
- Année de construction : 1930
-
Conditions
- Honoraires à charge de : vendeur
-
Superficies
- Surface habitable : 76 m²
Localisation
Contactez nous
Pour plus d'informations sur cette annonce, n'hésitez pas à nous contacter