Vente
Maison de campagne
à
Loire-Authion
323 000 €
Loire-Authion (49800)
iad France - Christelle Cohas vous propose: 'EXCLUSIVITE' Seulement chez iad !
'AUTHENTIQUE' Petit coin de paradis pour cette maison de Campagne avec piscine située à La Daguenière - commune déléguée de Loire-Authion !
Datant de 1856, ce bien alliant charme et caractère offre un cadre de vie exceptionnel pour les amoureux de la nature tout en étant à 20 mn de la gare d'Angers sur la route touristique d'Angers/Saumur (D952).
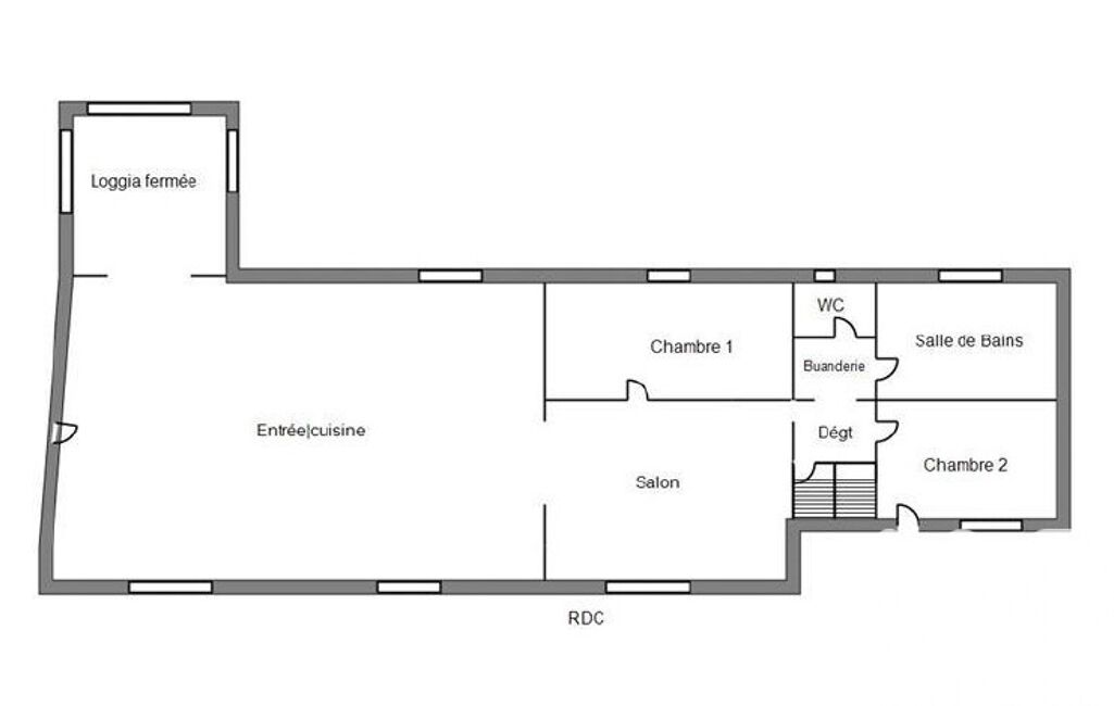
Sur la 1ère parcelle de 588 m², découvrons cette maison de 117 m² répartie sur 3 niveaux qui offre un agencement parfait pour accueillir toute la famille. Avec 5 chambres dont 2 au rez-de-chaussée, chacun pourra profiter d'un espace personnel confortable.
Dès l'entrée, vous ressentirez une atmosphère sereine avec une cuisine fonctionnelle ouverte sur la pièce de vie. L'accès à la loggia depuis la cuisine vous permettra de profiter de moments de détente tout en admirant la nature environnante et vous pourrez accéder aux espaces extérieurs.
A ce 1er niveau, retrouvez également 2 chambres dont 1 avec accès sur l'extérieur, 1 salle d'eau avec fenêtre, 1 WC séparé avec fenêtre, 1 coin buanderie.
Au niveau du sous-sol, profitez d'une belle chambre chaleureuse avec un accès sur le jardin.
Accédez à l'étage grâce à ce bel escalier en colimaçon avec un palier desservant 2 chambres et 1 petite mezzanine.
Côté extérieur, cette propriété dispose d'une piscine de 8x4 m datant de 2023 pour des moments de détente. Deux caves en sous-sol offrent un espace de stockage supplémentaire ainsi qu'un atelier de 15 m².
Un puits et un système d'irrigation à disposition également.
Mais ce n'est pas tout, en traversant la route, vous profiterez aussi d'une seconde parcelle de 647 m² avec ses sols riches en alluvions propice à la création d'un potager et fruitiers.
✅ Ses atouts :
* Maison ancienne typique des bords de Loire
* Cachet des sols en travertin et tomettes
* Vie de plain-pied possible
* 5 chambres
* Piscine 8x4 m datant de 2023
Au plaisir d'une visite avec vous !
Honoraires d'agence à la charge du vendeur.
Information d'affichage énergétique sur ce bien : classe ENERGIE E indice 254 et classe CLIMAT E indice 64. Les informations sur les risques auxquels ce bien est exposé, y compris l'obligation légale de débroussaillement, sont disponibles sur le site Géorisques : http://www.georisques.gouv.fr.
La présente annonce immobilière a été rédigée sous la responsabilité éditoriale de Mme Christelle Cohas mandataire indépendant en immobilier (sans détention de fonds), agent commercial de la SAS I@D France immatriculé au RSAC de ANGERS sous le numéro 833789324, titulaire de la carte de démarchage immobilier pour le compte de la société I@D France SAS.
Mandat : 1987656
Diagnostic de Performance Énergétique (DPE)
Plus d'informations
-
Descriptif
- Cave
- Nbre. d'étages : 3
- Nbre. de chambres : 5
- Nb. de pièces : 7
-
Equipement
- Câble TV
- Chauffage : fuel radiateur
-
Superficies
- Superficie terrain : 1235 m²
- Surface habitable : 117 m²
-
Extérieur
- Piscine
-
Etat
- Année de construction : 1856
-
Conditions
- Honoraires à charge de : vendeur
Localisation
Contactez nous
Pour plus d'informations sur cette annonce, n'hésitez pas à nous contacter