Vente
Studio
à
Villiers-sur-Marne
160 000 €
Villiers-sur-Marne (94350)
iad France - Meimei Xie vous propose: Superbe studio moderne – Idéal investissement locatif ou pied-à-terre – Villiers-sur-Marne
Situé au cOEur de Villiers-sur-Marne, à seulement 450 m de la gare RER E Villiers-sur-Marne – Le Plessis-Trévise, ce studio moderne est une belle opportunité, aussi bien pour un investissement locatif que pour un pied-à-terre.
D’une superficie de 23 m², il se trouve au 3ᵉ étage d’une résidence récente de standing, de style mansart, réalisée par Kaufman & Broad et livrée en 2019.
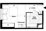
L’appartement se compose :
d’une entrée ouverte sur la pièce de vie,
d’un séjour lumineux avec kitchenette,
d’une salle de bains avec WC.
En excellent état, il offre un confort moderne avec de nombreux équipements : fibre optique, ascenseur, VMC, ainsi que des prestations de sécurité : digicode, interphone, porte blindée et résidence sécurisée.
Sa localisation centrale permet un accès rapide aux transports, commerces, écoles et espaces verts. Son exposition Ouest assure une belle luminosité tout au long de la journée.
Aucun travaux à prévoir : vous n’avez plus qu’à vous installer… ou à le mettre en location.
Mandat : 1938329
Diagnostic de Performance Énergétique (DPE)
Plus d'informations
-
Descriptif
- Étage du bien : 3eme
- Ascenseur
- Nbre. d'étages : 3
- Nb. de pièces : 1
-
Loi ALUR
- Copropriété
- Nombre de lots de la copropriété : 66
- Moyenne de la quote part(an) : 908 €
-
Equipement
- Digicode
- Interphone
-
Etat
- Année de construction : 2019
-
Conditions
- Honoraires à charge de : vendeur
-
Superficies
- Surface habitable : 23 m²
Localisation
Contactez nous
Pour plus d'informations sur cette annonce, n'hésitez pas à nous contacter