Vente
Maison
à
La Flotte
300 000 €
La Flotte (17630)
iad France - Julien TROUSSET vous propose: Maison de plain pied à rénover, idéale pour les investisseurs ou propriétaires férus de travaux.
Vous souhaitez investir au coeur de l'île de ré, dans le village de la Flotte, n'hésitez plus !
Dans un quartier calme, à l'écart de l'afflux touristique, et en zone non inondable, cette maison de plain pied représente un havre de paix.
Rénovation intérieure complète à prévoir.
Le bien est vendu viabilisé et clos de murs. Pas de copropriété, pleine propriété.
Deux places de stationnement à l'avant et jardinet à l'arrière.
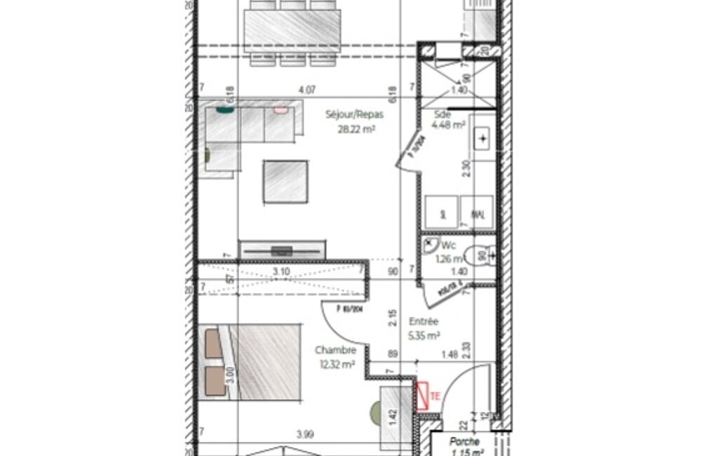
Possibilité d'aménagement avec une entrée, une chambre avec placards, un grand salon + cuisine ouverte, une salle d'eau, un WC indépendant. Petit porche d'accueil.
Budget travaux estimé par une maîtrise d'oeuvre de 97 k€ TTC (y compris honoraires maîtrise d'oeuvre).
Dossier complet sur demande.
Visuels 3D et propositions d'aménagement non contractuels.
Honoraires d'agence à la charge de l'acquéreur. Prix honoraires inclus : 300000 euros. Prix hors honoraires : 288000 euros. Honoraires TTC à la charge de l'acquéreur (4,17% du prix du bien hors honoraires) : 12000 euros.
Information d'affichage énergétique sur ce bien : classe ENERGIE F indice 295 et classe CLIMAT F indice 78. Les informations sur les risques auxquels ce bien est exposé, y compris l'obligation légale de débroussaillement, sont disponibles sur le site Géorisques : http://www.georisques.gouv.fr.
La présente annonce immobilière a été rédigée sous la responsabilité éditoriale de M Julien TROUSSET mandataire indépendant en immobilier (sans détention de fonds), agent commercial de la SAS I@D France immatriculé au RSAC de LA ROCHELLE sous le numéro 885337212, titulaire de la carte de démarchage immobilier pour le compte de la société I@D France SAS.
Mandat : 1820583
Diagnostic de Performance Énergétique (DPE)
Plus d'informations
-
Descriptif
- Nbre. d'étages : 1
- Nbre. de chambres : 1
- Nb. Parking : 1
- Nb. de pièces : 2
-
Conditions
- Honoraires : 12 000 €
- Prix hors honoraires acquéreur : 288 000 €
- Honoraires à charge de : acquéreur
-
Superficies
- Superficie terrain : 130 m²
- Surface habitable : 60 m²
-
Equipement
- Chauffage : electrique
Localisation
Contactez nous
Pour plus d'informations sur cette annonce, n'hésitez pas à nous contacter