Vente
Maison
à
Tremblay-en-France
312 000 €
Tremblay-en-France (93290)
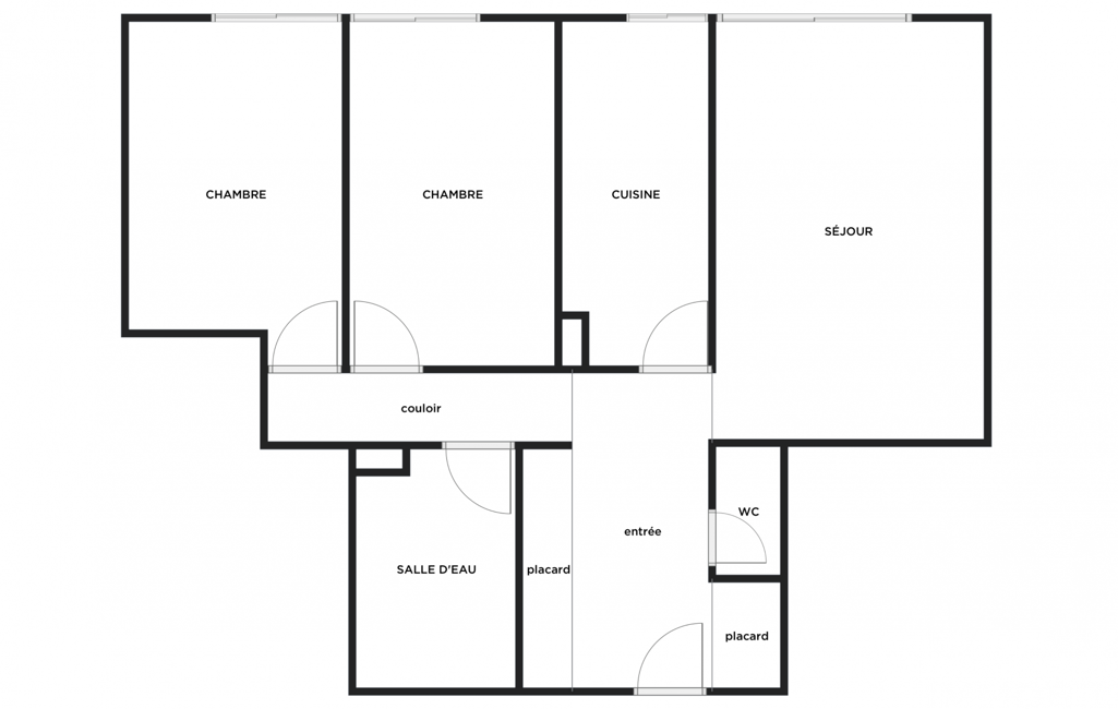
iad France - Nicolas Rousseau vous propose: Une belle maison de 100 m2 dans le quartier calme et pavillonnaire du bois saint Denis , sur la commune de Tremblay en France.
Ce bien se compose au RDC d'un séjour de 38 m2 lumineux avec un accès à la terrasse, une cuisine de12 m2, un accès ç la cave et une salle d'eau avec WC.
A l'étage vous trouverez une 1ére chambre de 11m2, 2 chambres avec mezzanine de 10 m2 dont une chambre avec un balcon et un bureau de 8m2, un accès au comble et une salle de bain.
A l'extérieur un jardin de 163m2, une terrasse de 34m2 , une dépendance pouvant servir d'atelier avec électricité, et une abri de jardin.
un garage et une place de parking viennent compléter ce bien idéal pour une famille.
Aucun travaux à prévoir.
une visite s'impose pour découvrir ce bien rare .
Honoraires d'agence à la charge du vendeur.
Information d'affichage énergétique sur ce bien : classe ENERGIE D indice 191 et classe CLIMAT D indice 41. Les informations sur les risques auxquels ce bien est exposé, y compris l'obligation légale de débroussaillement, sont disponibles sur le site Géorisques : http://www.georisques.gouv.fr.
La présente annonce immobilière a été rédigée sous la responsabilité éditoriale de M Nicolas Rousseau mandataire indépendant en immobilier (sans détention de fonds), agent commercial de la SAS I@D France immatriculé au RSAC de MEAUX sous le numéro 833136500, titulaire de la carte de démarchage immobilier pour le compte de la société I@D France SAS.
Mandat : 2016689
Diagnostic de Performance Énergétique (DPE)
Plus d'informations
-
Descriptif
- Cave
- Terrasse
- Nbre. d'étages : 2
- Nbre. de chambres : 3
- Nb. Parking : 1
- Nb. de pièces : 5
-
Equipement
- Alarme
- Câble TV
- Placards
- Chauffage : gaz radiateur
-
Superficies
- Surface terrasse : 34 m²
- Superficie terrain : 402 m²
- Surface habitable : 100 m²
-
Etat
- Année de construction : 1985
-
Conditions
- Honoraires à charge de : vendeur
Localisation
Contactez nous
Pour plus d'informations sur cette annonce, n'hésitez pas à nous contacter