Vente
Maison
à
Tarbes
249 000 €
Tarbes (65000)
iad France - Lucas Saint-Jours (06 50 99 43 73) vous propose : °°°MAISON INDIVIDUELLE NEUVE°°°
°°°TARBES, SITUÉ DANS LE TRIANGLE TARBES, IBOS, BORDÈRES°°°
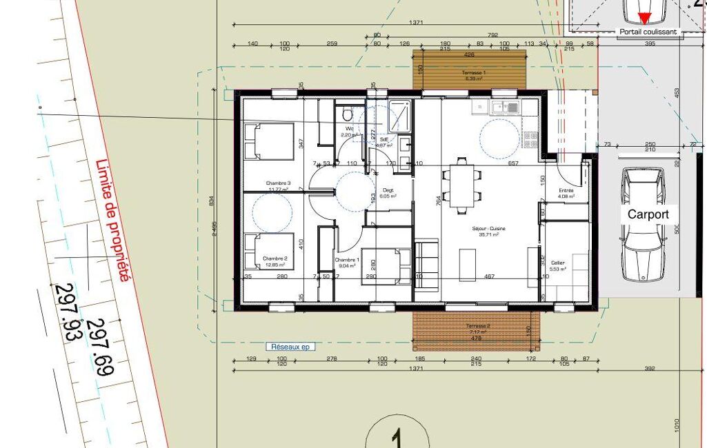
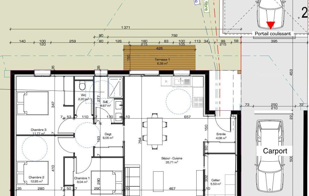
Optez pour un cadre de vie moderne et économe en énergie avec cette maison individuelle neuve de plain-pied d'une superficie d'environ 92m2 environ sur une parcelle de 540m2 environ (sous garantie décennale). Une occasion à ne pas manquer pour devenir propriétaire d'un bien neuf, conforme aux normes RE2020, dans un lotissement agréable et bien situé.
Description du bien :
Surface habitable : 92 m² environ
Exposition : Sud/Nord
Nombre de pièces : 4 (3 chambres)
Carport attenant à la maison
Points forts : Classe énergétique A
Conformité RE2020 : Respect des normes les plus récentes en matière de performance énergétique, pour un confort thermique optimal et une consommation maîtrisée.
Lotissement résidentiel : Située dans un quartier calme et sécurisé, à proximité immédiate des commodités (écoles, commerces, transports).
Détail de la livraison du logement:
La maison est livrée entièrement finie, peintures, revêtements de sol, cuisine équipée (plaque induction, hotte, lave-vaisselle, four), salle d'eau, clôtures.
AVANTAGE :
Pour une vente en VEFA (Vente en état futur d'achèvement) les frais de notaire sont réduits : 2 à 3%.
Maison entièrement finie et disponible immédiatement.
Honoraires d’agence à la charge du vendeur. Bien non soumis au DPE. Les informations sur les risques auxquels ce bien est exposé sont disponibles sur le site Géorisques : www.georisques.gouv.fr. La présente annonce immobilière a été rédigée sous la responsabilité éditoriale de M. Lucas Saint-Jours EI (ID 81549), mandataire indépendant en immobilier (sans détention de fonds), agent commercial de la SAS I@D France immatriculé au RSAC de TARBES sous le numéro 984295816, titulaire de la carte de démarchage immobilier pour le compte de la société I@D France SAS.
Retrouvez tous nos biens sur notre site internet. www.iadfrance.fr
Mandat : 1698227-1
Diagnostic de Performance Énergétique (DPE)
Plus d'informations
-
Equipement
- Placards
- Chauffage : electrique
-
Descriptif
- Terrasse
- Nb. de pièces : 4
-
Superficies
- Superficie terrain : 540 m²
- Surface habitable : 92 m²
-
Etat
- Année de construction : 2025
-
Conditions
- Honoraires à charge de : vendeur
Localisation
Contactez nous
Pour plus d'informations sur cette annonce, n'hésitez pas à nous contacter