Vente
Maison
à
Campbon
313 500 €
Campbon (44750)
iad France - Corinne Deleplace vous propose: Dans le LIEU dit la MAUDRENAIS au calme. Cette longère mitoyenne d'un côté attend sa nouvelle famille.
Une immense parcelle de plus de 6000m² vous permet de multiples activités. Garage/Dépendance.
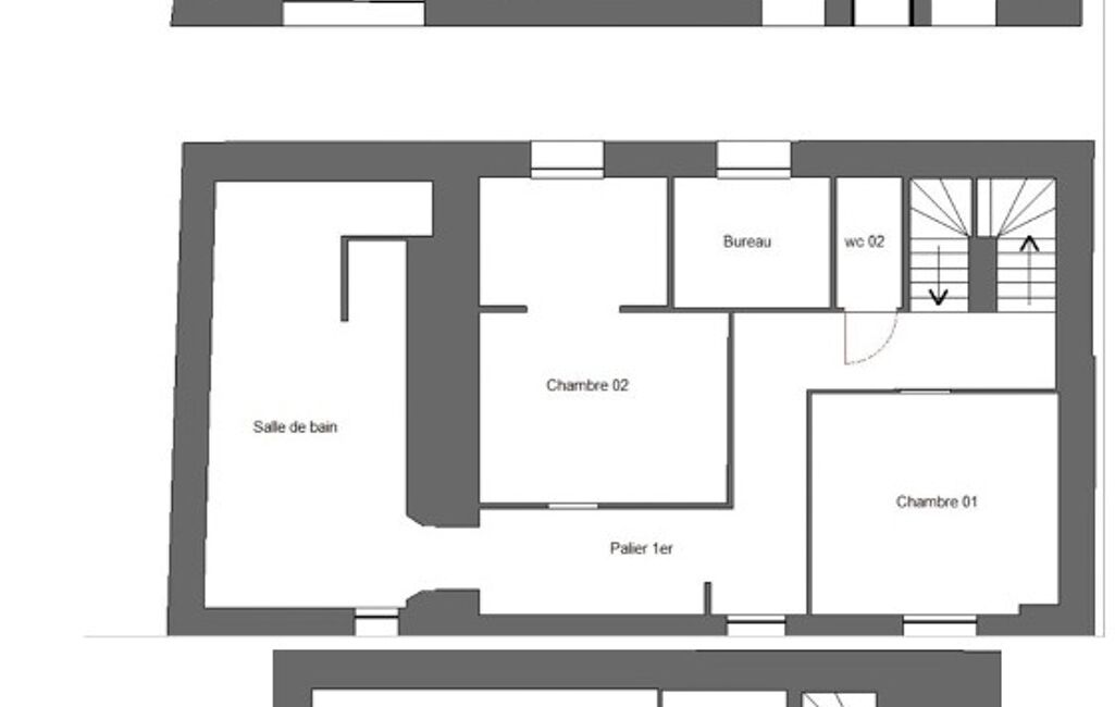
Elle se compose comme suit : Voir PLAN.
RDC: Grande pièce à vivre avec insert et une porte vitrée donnant sur la terrasse EST. Une cuisine bien agencée et un wc indépendant. Une porte donnant également sur le jardin.
ETAGE 1 : un couloir nous dessert une chambre parentale avec espace dressing. Un wc indépendant, une salle de bain. Une chambre.
ETAGE 2: Un palier dessert 3 chambres sous rampant.
Cette maison a son propre système d'assainissement par épandage dans le terrain qui fonctionne. Vidange sera faite pour la vente. Ouvertures double vitrage BOIS/PVC. Ballon d'eau chaude 2014. Climatisation AIR/AIR.
Travaux à prévoir : Finitions des murs à prévoir. Salle de bain à rénover.
Dpe sur demande. Au plaisir d'organiser une visite.
Honoraires d'agence à la charge de l'acquéreur. Prix honoraires inclus : 313500 euros. Prix hors honoraires : 299000 euros. Honoraires TTC à la charge de l'acquéreur (4,85% du prix du bien hors honoraires) : 14500 euros.
Information d'affichage énergétique sur ce bien : classe ENERGIE D indice 204 et classe CLIMAT B indice 6. Les informations sur les risques auxquels ce bien est exposé, y compris l'obligation légale de débroussaillement, sont disponibles sur le site Géorisques : http://www.georisques.gouv.fr.
La présente annonce immobilière a été rédigée sous la responsabilité éditoriale de Mme Corinne Deleplace mandataire indépendant en immobilier (sans détention de fonds), agent commercial de la SAS I@D France immatriculé au RSAC de SAINT NAZAIRE sous le numéro 901632570, titulaire de la carte de démarchage immobilier pour le compte de la société I@D France SAS.
Mandat : 1941687
Diagnostic de Performance Énergétique (DPE)
Plus d'informations
-
Descriptif
- Terrasse
- Nbre. d'étages : 3
- Nbre. de chambres : 5
- Nb. de pièces : 9
-
Superficies
- Superficie terrain : 6291 m²
- Surface habitable : 145 m²
-
Equipement
- Chauffage : electrique radiateur
-
Etat
- Année de construction : 1800
-
Conditions
- Honoraires à charge de : vendeur
Localisation
Contactez nous
Pour plus d'informations sur cette annonce, n'hésitez pas à nous contacter