Location
Appartement
à
Créteil
1 300 € CC /mois
Créteil (94000)
iad France - Yanis El Idrissi vous propose: • SECTEUR CRÉTEIL PRÉFECTURE _ Rue Claude Perrault
• Contact par MAIL ou SMS UNIQUEMENT. Merci ! (Tout est dans l'annonce),
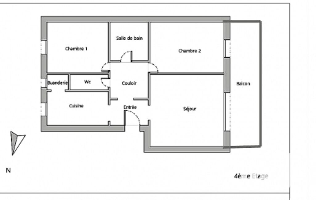
• Au 4eme et dernier étage SANS ascenseur,
• DOSSIER COMPLET PAR MAIL EN PDF AVANT VISITE : (VOIR ADRESSE MAIL SUR LA 2ème photo).
• CENTRE COMMERCIAL CRÉTEIL SOLEIL à 5min,
• BIEN EN LIGNE = BIEN DISPONIBLE
• MERCI DE VOUS PRÉSENTER LE PLUS PRÉCISÉMENT POSSIBLE LORS DE VOS DEMANDES D'INFORMATIONS : Profession, salaires, type de contrat, ….
• CONDITIONS : Salariés CDI UNIQUEMENT avec revenus égale ou supérieur à 3X le loyer avec GARANTS (4X le loyer) ou ETUDIANTS avec garants (4X le loyer).
A moins de 9min à pied du métro et de toutes les commodités, situé dans une résidence fermée et sécurisée, bel appartement entièrement rénové avec goût et modernité.
Au 4eme et dernier étage SANS ascenseur traversant, fonctionnel, lumineux et très bien agencé sans vis a vis, il se compose d'une entrée, un séjour donnant sur balcon, une cuisine intégralement aménagée et équipée, 2 chambres avec rangements, une salle de bains et WC séparés.
Stationnement libre dans la résidence, (pas de parking attitré).
Information d'affichage énergétique sur ce bien : classe ENERGIE F indice 381 et classe CLIMAT C indice 22. Les informations sur les risques auxquels ce bien est exposé, y compris l'obligation légale de débroussaillement, sont disponibles sur le site Géorisques : http://www.georisques.gouv.fr.
La présente annonce immobilière a été rédigée sous la responsabilité éditoriale de M Yanis El Idrissi mandataire indépendant en immobilier (sans détention de fonds), agent commercial de la SAS I@D France immatriculé au RSAC de creteil sous le numéro 931439160, titulaire de la carte de démarchage immobilier pour le compte de la société I@D France SAS. Location meublée. Montant du loyer mensuel charges comprises : 1300.00 euros / mois. Provision mensuelle avec récupération annuelle : 200.00 euros / mois. Zone soumise à encadrement : non. Dépôt de garantie : 2200 euros. Honoraires TTC à la charge du locataire: 531 euros (soit 9€/m²).
Mandat : 1924789
Diagnostic de Performance Énergétique (DPE)
Plus d'informations
-
Descriptif
- Cave
- Meublé
- Nbre. d'étages : 4
- Nbre. de chambres : 2
- Nb. de pièces : 3
-
Equipement
- Digicode
- Chauffage : collectif gaz
- Interphone
-
Conditions
- Charges : 200 €
- Honoraires : 531 €
-
Superficies
- Surface habitable : 59 m²
Localisation
Contactez nous
Pour plus d'informations sur cette annonce, n'hésitez pas à nous contacter