Vente
Appartement
à
Cannes
1 191 000 €
Cannes (06400)
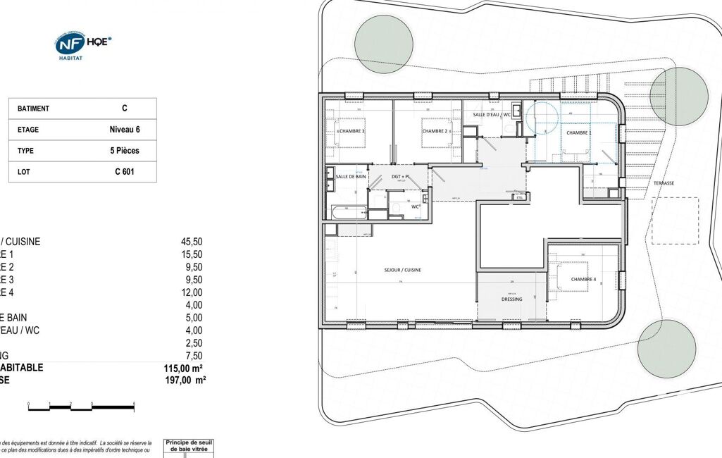
iad France - Isabelle Boemo (06 45 54 69 12) vous propose : Appartement d’exception – 5 pièces – 115 m² environ – Terrasse panoramique – À 10 min à pied des plages
Et si vous viviez chaque jour comme en vacances ?
Perché au 6? et dernier étage, ce magnifique appartement 5 pièces de 115 m² environ s’ouvre sur une terrasse spectaculaire de près de 200 m² environ, où le ciel et la mer semblent se rejoindre à l’horizon.
Inondé de lumière grâce à ses grandes baies vitrées, il offre une atmosphère élégante et apaisante.
Le séjour de plus de 45 m² environ, prolongé par la terrasse, devient un véritable lieu de vie où intérieur et extérieur se confondent.
Les quatre chambres accueillantes, dont une suite parentale, offrent calme et intimité.
Chaque détail a été pensé pour le confort : climatisation réversible, prestations haut de gamme, finitions raffinées, ascenseur et stationnement sécurisé.
À seulement 10 minutes à pied des plages, dans un environnement paisible, cet appartement incarne l’art de vivre méditerranéen : l’élégance, la lumière et la sérénité au quotidien.
Honoraires d’agence à la charge du vendeur. Bien non soumis au DPE. Les informations sur les risques auxquels ce bien est exposé sont disponibles sur le site Géorisques : www.georisques.gouv.fr. La présente annonce immobilière a été rédigée sous la responsabilité éditoriale de Mlle Isabelle Boemo EI (ID 79392), mandataire indépendant en immobilier (sans détention de fonds), agent commercial de la SAS I@D France immatriculé au RSAC de Cannes sous le numéro 534765748, titulaire de la carte de démarchage immobilier pour le compte de la société I@D France SAS.
Retrouvez tous nos biens sur notre site internet. www.iadfrance.fr
Mandat : 1867293-2
Diagnostic de Performance Énergétique (DPE)
Plus d'informations
-
Equipement
- Digicode
- Placards
- Interphone
- Climatisation
-
Descriptif
- Terrasse
- Ascenseur
- Nbre. d'étages : 8
- Nb. de pièces : 5
-
Etat
- Année de construction : 2026
-
Conditions
- Honoraires à charge de : vendeur
-
Superficies
- Surface habitable : 115 m²
Localisation
Contactez nous
Pour plus d'informations sur cette annonce, n'hésitez pas à nous contacter