Vente
Appartement
à
Marseille
175 000 €
Marseille (13015)
iad France - Mathilde Sagon vous propose:
A la sortie de Septèmes les Vallons, Notre Dame Limite
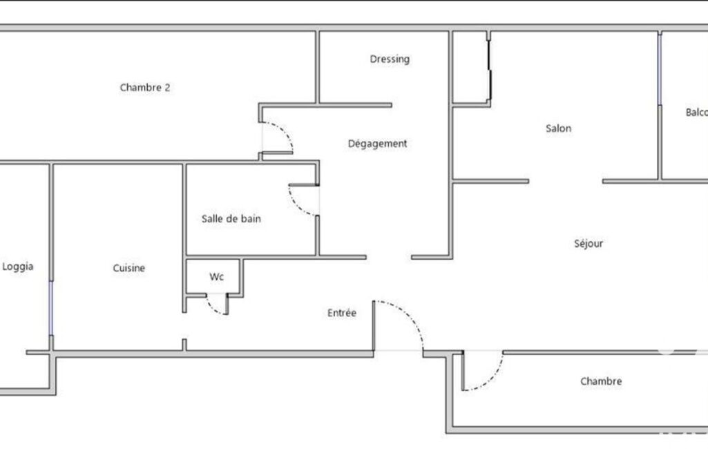
Cet appartement de 83 m² se situe dans une résidence calme et sécurisée. Traversant et sans vis-à-vis, il bénéficie d’une double exposition Sud/Est offrant lumière et sérénité.
L'appartement se compose comme suit :
- 1 double séjour de 30 m2, offrant la possibilité de créer une 3e chambre, selon vos besoins.
- 2 chambres de 10.5 et 16 m2 avec placards.
- 1 salle de bain
- WC séparés
- 1 cuisine équipée
- 1 cellier
- 2 loggias
- 1 place de parking privative
chauffage collectif inclus dans les charges
Environnement immédiat :
- Commerces, écoles et services accessibles à pied ou en bus en moins de 10 min.
- Arrêts de bus (Notre-Dame Limite, Vallon d’Ol Bourrély) à 1-2 min à pied (lignes B2, 97, L51, 96, 5252).
- B2 : Direction Vallon des Tuves ou Gèze
- 97 : Direction Hôpital Nord ou Canebière Bourse
- Gare de Saint-Antoine à 9 min à pied (ligne C2, direction Aix-en-Provence).
- Accès autoroutiers (A7, A50) à moins de 10 min en voiture.
- Hôpital Nord accessible directement par la ligne 97.
Contactez moi rapidement pour une visite !
La presente annonce immobiliere vise 2 lots situés dans une copropriété de 126 lots au total et ne faisant l'objet d'aucune procédure en cours citée à l'article L. 721-1 du code de la construction et de l'habitation. Montant moyen mensuel de charges déclaré par le vendeur : 270.2€ par mois (soit 3242.4 € annuel). Honoraires d'agence à la charge du vendeur.
Information d'affichage énergétique sur ce bien : classe ENERGIE D indice 222 et classe CLIMAT D indice 46. Les informations sur les risques auxquels ce bien est exposé, y compris l'obligation légale de débroussaillement, sont disponibles sur le site Géorisques : http://www.georisques.gouv.fr.
La présente annonce immobilière a été rédigée sous la responsabilité éditoriale de Mme Mathilde Sagon mandataire indépendant en immobilier (sans détention de fonds), agent commercial de la SAS I@D France immatriculé au RSAC de Marseille sous le numéro 531579662, titulaire de la carte de démarchage immobilier pour le compte de la société I@D France SAS.
Mandat : 1977764
Diagnostic de Performance Énergétique (DPE)
Plus d'informations
-
Descriptif
- Étage du bien : 1er
- Nbre. d'étages : 3
- Nbre. de chambres : 2
- Nb. Parking : 1
- Nb. de pièces : 3
-
Equipement
- Digicode
- Placards
- Chauffage : collectif electrique radiateur
- Interphone
-
Loi ALUR
- Copropriété
- Nombre de lots de la copropriété : 126
- Moyenne de la quote part(an) : 3 242.40 €
-
Etat
- Année de construction : 1974
-
Conditions
- Honoraires à charge de : vendeur
-
Superficies
- Surface habitable : 83 m²
Localisation
Contactez nous
Pour plus d'informations sur cette annonce, n'hésitez pas à nous contacter