Vente
Maison
à
Langon
288 000 €
Langon (33210)
iad France - Ingrid BARRAT vous propose: Maison achevée en 2023, familiale sans travaux, contemporaine et économique proche de Langon.
La maison est exposée principalement sud-est.
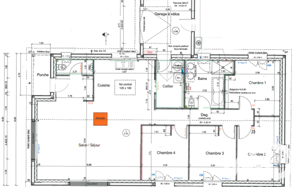
Vous trouverez le plan joint afin de vous projeter.
Entrée avec placard, wc, grand salon / séjour ouvert sur l'espace cuisine meublée et équipée. Cellier, buanderie. Salle de bain avec douche et wc. 4 chambres. Un garage à vélo.
L'assainissement est collectif.
Le système de chauffage est une pompe à chaleur air/air réversible.
Chauffe-eau économique.
RT 2012.
Terrasses.
La parcelle est clôturée est fermée avec un portail électrique.
Scolarité : maternelle à CM2. Arrêt de bus scolaire à 500m.
Quelques commerces dans le village.
Je reste à votre écoute.
Honoraires d'agence à la charge de l'acquéreur. Prix honoraires inclus : 288000 euros. Prix hors honoraires : 275000 euros. Honoraires TTC à la charge de l'acquéreur (4,73% du prix du bien hors honoraires) : 13000 euros.
Information d'affichage énergétique sur ce bien : classe ENERGIE A indice 37 et classe CLIMAT A indice 1. Les informations sur les risques auxquels ce bien est exposé, y compris l'obligation légale de débroussaillement, sont disponibles sur le site Géorisques : http://www.georisques.gouv.fr.
La présente annonce immobilière a été rédigée sous la responsabilité éditoriale de Mme Ingrid BARRAT mandataire indépendant en immobilier (sans détention de fonds), agent commercial de la SAS I@D France immatriculé au RSAC de Bordeaux sous le numéro 834500001, titulaire de la carte de démarchage immobilier pour le compte de la société I@D France SAS.
Mandat : 1933099
Diagnostic de Performance Énergétique (DPE)
Plus d'informations
-
Descriptif
- Terrasse
- Nbre. d'étages : 1
- Nbre. de chambres : 4
- Nb. de pièces : 6
-
Equipement
- Chauffage : electrique
- Climatisation
-
Superficies
- Superficie terrain : 670 m²
- Surface habitable : 114 m²
-
Etat
- Année de construction : 2023
-
Conditions
- Honoraires à charge de : vendeur
Localisation
Contactez nous
Pour plus d'informations sur cette annonce, n'hésitez pas à nous contacter