Vente
Maison
à
Montagnat
345 000 €
Montagnat (01250)
iad France - Cédric Bornarel vous propose: Maison individuelle 2017 – 119 m² – 4 chambres – DPE A – Terrain clos 587 m²
Située dans un environnement résidentiel, cette maison individuelle construite en 2017 par l' Atelier Construction développe 119,6 m² habitables sur une parcelle de 587 m² entièrement clôturée avec portail coulissant aluminium, un grillage et des haies ou brises vues.
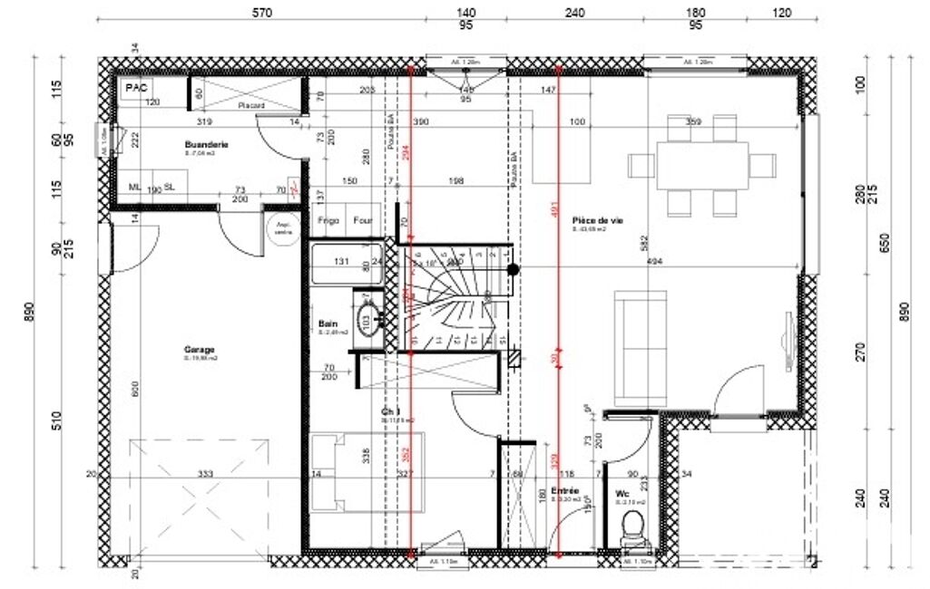
Organisée sur deux niveaux, elle propose au rez-de-chaussée une pièce de vie de 43 m² avec cuisine moderne et fonctionnelle ouverte aménagée et équipée, une chambre de plain-pied avec salle d’eau équipée d'une douche italienne et d'un vasque, un WC indépendant avec fenêtre, ainsi qu’une buanderie communiquant directement avec un garage de près de 20 m² équipé d'une porte motorisée.
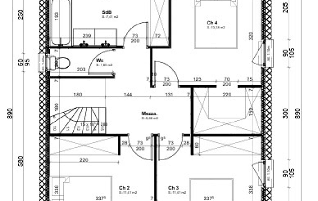
À l’étage, vous trouverez trois chambres (11 à 13 m²), une salle de bain, un WC indépendant et un espace mezzanine pouvant accueillir un bureau ou un coin lecture.
La maison bénéficie d’un excellent classement énergétique (DPE A) avec une consommation maîtrisée de 58 kWh/m²/an et des coûts estimés entre 600 € et 870 € par an. Combles perdus isolés, Chauffage assuré par une pompe à chaleur air/eau alimentant un plancher chauffant au rez-de-chaussée et des radiateurs à l’étage. Une pompe à chaleur air/air (climatisation réversible) installée en 2023 assure le confort d’été. Menuiseries oscillo-battantes PVC et Alu double vitrage avec volets roulants motorisés (domotique), VMC hygroréglable, production d’eau chaude par PAC. Adoucisseur, aspiration centralisée, spots encastrés. Planches de rives en PVC avec bandeaux métalliques, film sous toiture et tuiles terre cuite.
Les aménagements extérieurs ont été réalisés récemment (2024) avec cour en enrobé, accès structuré avec tour de maison en résine, une terrasse au Sud couverte, une terrasse à l'Est équipée d’une pergola aluminium bioclimatique installée en 2021. Le terrain est clos. La maison profite d'un assainissement collectif. La fibre a été installée. Interphone et digicode. Aucun travaux à prévoir. Ramassage scolaire à proximité.
Honoraires d'agence à la charge du vendeur.
Information d'affichage énergétique sur ce bien : classe ENERGIE A indice 58 et classe CLIMAT A indice 1. Les informations sur les risques auxquels ce bien est exposé, y compris l'obligation légale de débroussaillement, sont disponibles sur le site Géorisques : http://www.georisques.gouv.fr.
La présente annonce immobilière a été rédigée sous la responsabilité éditoriale de M Cédric Bornarel mandataire indépendant en immobilier (sans détention de fonds), agent commercial de la SAS I@D France immatriculé au RSAC de Bourg en Bresse sous le numéro 985405174, titulaire de la carte de démarchage immobilier pour le compte de la société I@D France SAS.
Mandat : 1959997
Diagnostic de Performance Énergétique (DPE)
Plus d'informations
-
Descriptif
- Terrasse
- Nbre. d'étages : 1
- Nbre. de chambres : 4
- Nb. Parking : 1
- Nb. de pièces : 5
-
Equipement
- Digicode
- Placards
- Interphone
-
Superficies
- Superficie terrain : 587 m²
- Surface habitable : 119 m²
-
Etat
- Année de construction : 2017
-
Conditions
- Honoraires à charge de : vendeur
Localisation
Contactez nous
Pour plus d'informations sur cette annonce, n'hésitez pas à nous contacter