Vente
Maison de campagne
à
Marigny
48 000 €
Marigny (51230)
iad France - Jennifer Porcellini vous propose:
✨ Opportunité en viager occupé à Marigny (51)
💡 Un investissement patrimonial sécurisé avec un viager occupé par un couple :
Madame : 79 ans
Monsieur : 86 ans
💰Bouquet : 48 000 €
Rente mentuelle de 223,52€
Maison de Campagne de Charme avec Vaste Terrain à Marigny
offrant un cadre paisible et verdoyant à seulement quelques kilomètres de la ville. Construite en 1992 et bien entretenue, cette propriété de plain-pied est parfaite pour les amoureux de la nature et de l'authenticité.
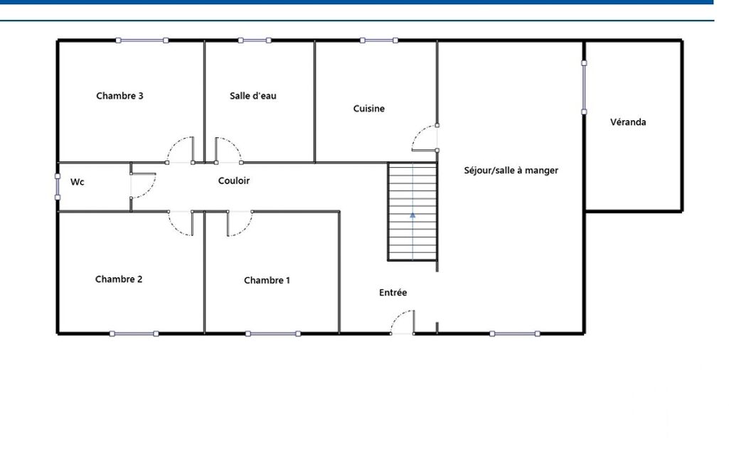
La maison s'étend sur une surface de 90 m2 et propose un agencement idéal pour une famille. Avec 3 chambres spacieuses, une salle d'eau, un WC séparé, une cuisine équipée, une salle à manger et une entrée accueillante, elle offre tout le confort nécessaire pour une vie harmonieuse à la campagne.
L'intérieur chaleureux et convivial est mis en valeur par des labels de qualité, notamment une cuisine fonctionnelle, une salle à manger lumineuse et des chambres confortables. Des éléments qui apportent une touche d'élégance et de modernité à cette maison de caractère.
À l'extérieur, vous serez séduit par le vaste terrain de 5350 m2 qui entoure la propriété. Profitez de la nature, du calme et de l'espace pour vous détendre, jardiner ou organiser des activités en plein air. Avec l'absence de vis-à-vis, vous pourrez apprécier une intimité préservée.
Les équipements de confort tels que la fibre optique, la télévision par câble, le système de ventilation mécanique et la fosse septique contribuent à rendre cette maison pratique et fonctionnelle. Le chauffage individuel par radiateurs, alimenté par du bois ou du fuel, assure une chaleur agréable en toutes saisons.
Vous serez charmé par l'état général de la maison, sa luminosité, son cadre verdoyant et son atmosphère paisible. Une belle opportunité pour vivre à la campagne tout en restant proche des commodités de la ville.
Ne manquez pas cette occasion unique d'acquérir une maison de campagne pleine de charme à Marigny. Contactez-nous dès maintenant pour organiser une visite et laissez-vous séduire par ce petit coin de paradis.
Honoraires d'agence à la charge du vendeur.
Information d'affichage énergétique sur ce bien : classe ENERGIE D indice 208 et classe CLIMAT D indice 34. Les informations sur les risques auxquels ce bien est exposé, y compris l'obligation légale de débroussaillement, sont disponibles sur le site Géorisques : http://www.georisques.gouv.fr.
La présente annonce immobilière a été rédigée sous la responsabilité éditoriale de Mme Jennifer Porcellini mandataire indépendant en immobilier (sans détention de fonds), agent commercial de la SAS I@D France immatriculé au RSAC de Reims sous le numéro 450750500, titulaire de la carte de démarchage immobilier pour le compte de la société I@D France SAS.
Mandat : 1995568
Diagnostic de Performance Énergétique (DPE)
Plus d'informations
-
Descriptif
- Nbre. d'étages : 1
- Nbre. de chambres : 3
- Nb. de pièces : 5
-
Equipement
- Câble TV
- Chauffage : fuel radiateur
-
Superficies
- Superficie terrain : 5350 m²
- Surface habitable : 90 m²
-
Etat
- Année de construction : 1992
-
Conditions
- Honoraires à charge de : vendeur
Localisation
Contactez nous
Pour plus d'informations sur cette annonce, n'hésitez pas à nous contacter