Vente
Duplex
à
Saint-Germain-en-Laye
1 310 000 €
Saint-Germain-en-Laye (78100)
iad France - Sarah Rozière (06 99 86 19 42) vous propose : Appartement T4 en duplex à Germain-en-Laye.
Au cOEur du centre historique de Saint-Germain-en-Laye, à proximité immédiate du château royal et de la place du Marché, découvrez Le Carré Richelieu, une adresse prestigieuse. Cette réhabilitation exceptionnelle d’un bâtiment du XVI ème siècle associe prestige architectural, modernité et confort absolu, dans un environnement calme et raffiné. Disponible 2026.
Un appartement raffiné :
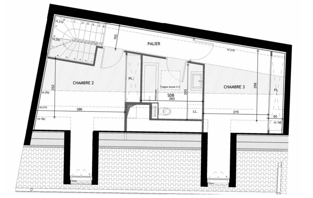
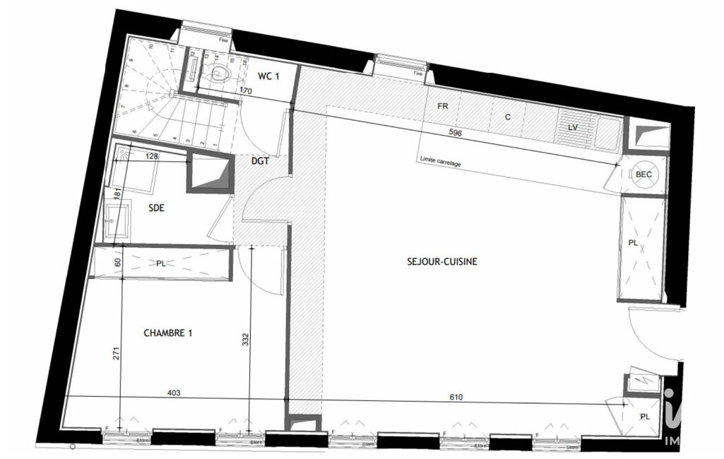
Situé au 1 er étage, cet appartement T4 est un duplex de 99 m² environ habitables.
- Séjour/cuisine de 42 m² environ.
- Trois chambres confortables.
- Une salle de bains et une salle d'eau modernes.
De belles prestations :
- Résidence entièrement restaurée dans le respect du patrimoine architectural classé.
- Matériaux nobles : parquet contrecollé, faïences et carrelages raffinés.
- Chauffage individuel électrique pilotable par domotique.
- Boîtes aux lettres connectées, visiophone et accès sécurisé par digicode et Vigik.
L’art de vivre à Saint-Germain-en-Laye :
- À deux pas du Château et du RER A.
- Ville d’histoire, entre forêt domaniale, commerces de charme et écoles renommées.
- Accès rapide à Paris en 25 minutes.
- Un cadre de vie élégant, entre tradition et modernité.
N’hésitez pas à me contacter pour plus d’informations ou pour un accompagnement sur mesure.
Honoraires d’agence à la charge du vendeur. Bien non soumis au DPE. Les informations sur les risques auxquels ce bien est exposé sont disponibles sur le site Géorisques : www.georisques.gouv.fr. La présente annonce immobilière a été rédigée sous la responsabilité éditoriale de Mlle Sarah Rozière EI (ID 83696), mandataire indépendant en immobilier (sans détention de fonds), agent commercial de la SAS I@D France immatriculé au RSAC de Clermont-Ferrand sous le numéro 978616993, titulaire de la carte de démarchage immobilier pour le compte de la société I@D France SAS.
Retrouvez tous nos biens sur notre site internet. www.iadfrance.fr
Mandat : 1867431-12
Diagnostic de Performance Énergétique (DPE)
Plus d'informations
-
Descriptif
- Étage du bien : 1er
- Ascenseur
- Nbre. d'étages : 3
- Nbre. de chambres : 3
- Nb. de pièces : 4
-
Equipement
- Câble TV
- Digicode
- Placards
- Chauffage : individuel electrique radiateur
- Interphone
-
Conditions
- Honoraires à charge de : vendeur
-
Superficies
- Surface habitable : 99 m²
Localisation
Contactez nous
Pour plus d'informations sur cette annonce, n'hésitez pas à nous contacter