Vente
Appartement
à
Marseille
1 260 000 €
Marseille (13007)
iad France - Yoann Lonchamp vous propose: (Photos temporaires / Shooting en cours)
Penthouse vue mer – Résidence Les Alpilles I – Corniche Kennedy
Dans l’une des résidences les plus emblématiques et recherchées de Marseille, Les Alpilles, sur les hauteurs de la Corniche Kennedy, découvrez ce penthouse d’exception en dernier étage, offrant une vue mer spectaculaire et un cadre de vie aussi rare que privilégié.
La résidence, sécurisée 24h/24, propose des prestations de standing : gardien à demeure, piscine privée, parc paysager arboré, et une atmosphère paisible à l’abri de toute nuisance, tout en étant à quelques minutes des plages, des calanques et du centre-ville.
L’appartement s’ouvre sur une somptueuse terrasse de 120 m², exposée plein sud, véritable prolongement de la pièce de vie, aménagée avec pergola bioclimatique, arrosage automatique et espaces végétalisés, idéale pour profiter des couchers de soleil face à la mer.
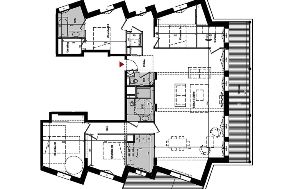
À l’intérieur, le bien développe de très beaux volumes avec une hauteur sous plafond de 3 mètres. Il se compose d’une entrée, d’un vaste séjour de 46 m² avec vue mer, d’une cuisine indépendante (facilement ouvrable sur le séjour), de deux chambres, chacune disposant de sa salle d’eau ou salle de bains, d’un dressing et de dégagements fonctionnels.
Les prestations sont à la hauteur : parquet, climatisation, stores électriques, double vitrage, porte blindée.
L’ensemble est sain et parfaitement entretenu, à remettre au goût du jour selon vos envies.
Une cave et une place de stationnement en sous-sol complètent ce bien rare.
Charges : 595 €/mois (dont chauffage collectif)
Taxe foncière : 3 357 € / an
Un lieu de vie confidentiel, élégant et unique, pour amateurs de panoramas d’exception et d’adresses prestigieuses.
La presente annonce immobiliere vise 3 lots situés dans une copropriété de 236 lots au total et ne faisant l'objet d'aucune procédure en cours citée à l'article L. 721-1 du code de la construction et de l'habitation. Montant moyen mensuel de charges déclaré par le vendeur : 595€ par mois (soit 7140 € annuel). Honoraires d'agence à la charge du vendeur.
Information d'affichage énergétique sur ce bien : classe ENERGIE D indice 315 et classe CLIMAT D indice 46. Les informations sur les risques auxquels ce bien est exposé, y compris l'obligation légale de débroussaillement, sont disponibles sur le site Géorisques : http://www.georisques.gouv.fr.
La présente annonce immobilière a été rédigée sous la responsabilité éditoriale de M Yoann Lonchamp mandataire indépendant en immobilier (sans détention de fonds), agent commercial de la SAS I@D France immatriculé au RSAC de MARSEILLE sous le numéro 893148650, titulaire de la carte de démarchage immobilier pour le compte de la société I@D France SAS.
Mandat : 1904815
Diagnostic de Performance Énergétique (DPE)
Plus d'informations
-
Descriptif
- Cave
- Étage du bien : 6eme
- Nbre. d'étages : 6
- Nbre. de chambres : 2
- Nb. Parking : 1
- Nb. de pièces : 3
-
Loi ALUR
- Copropriété
- Nombre de lots de la copropriété : 236
- Moyenne de la quote part(an) : 7 140 €
-
Etat
- Année de construction : 1975
-
Conditions
- Honoraires à charge de : vendeur
-
Superficies
- Surface habitable : 112 m²
Localisation
Contactez nous
Pour plus d'informations sur cette annonce, n'hésitez pas à nous contacter