Vente
Appartement
à
Massy
415 000 €
Massy (91300)
iad France - Olivier SALESSE vous propose: ***EN EXCLUSIVITE***, découvrez cet appartement LUMINEUX et SPACIEUX - 4 pièces de 87m². Situé au cOEur du QUARTIER VILMORIN à Massy, ce bien au 1er étage d'une résidence de 2004, SECURISEE et entretenue, saura vous séduire !
Son emplacement est IDEAL : à deux pas des commerces de la place de l’Union Européenne, à proximité IMMEDIATE de la gare RER B/C Massy-Palaiseau, de la future ligne de métro 18 et du Tramway T12. Groupes scolaires accessibles en moins de 10 minutes à pied. Un cadre de vie PRATIQUE au quotidien.
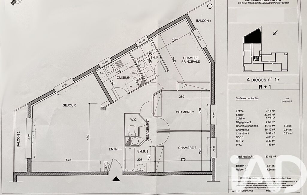
L’appartement s’ouvre sur un DOUBLE SEJOUR. LUMINEUX grâce à sa DOUBLE ORIENTATION et sa grand baie vitrée, il bénéficie d'un balcon abrité, idéal pour profiter de moments ensoleillés. La cuisine attenante est aménagée et TOTALEMENT EQUIPEE. Conçue pour être fonctionnelle, elle offre de NOMBREUX RANGEMENTS.
Un petit dégagement vous invite vers la SUITE PARENTALE de 14m², séparée de la partie nuit. Elle vous propose sa propre salle de bain avec baignoire et WC, de grands RANGEMENTS et un BALCON ! A disposition également, 2 chambres avec chacune leur PLACARD, une salle d’eau et des WC séparés.
L’eau froide est comprise dans les charges. Chauffages électriques à inertie et ballon d’eau chaude individuel. De réelles ECONOMIES grâce à une consommation maîtrisée ! Une CLIMATISATION réversible vous garantit un CONFORT en toute saison. Volets motorisés dans la pièce de vie et les chambres. FIBRE installée.
2 places de parking COTE A COTE en sous-sol sécurisé complètent le bien. L’une est équipée d’une borne de recharge pour véhicule électrique.
Visite virtuelle disponible sur demande.
La presente annonce immobiliere vise 3 lots situés dans une copropriété de 111 lots au total et ne faisant l'objet d'aucune procédure en cours citée à l'article L. 721-1 du code de la construction et de l'habitation. Montant moyen mensuel de charges déclaré par le vendeur : 149.45€ par mois (soit 1793.44 € annuel). Honoraires d'agence à la charge du vendeur.
Information d'affichage énergétique sur ce bien : classe ENERGIE C indice 159 et classe CLIMAT B indice 6. Les informations sur les risques auxquels ce bien est exposé, y compris l'obligation légale de débroussaillement, sont disponibles sur le site Géorisques : http://www.georisques.gouv.fr.
La présente annonce immobilière a été rédigée sous la responsabilité éditoriale de M Olivier SALESSE mandataire indépendant en immobilier (sans détention de fonds), agent commercial de la SAS I@D France immatriculé au RSAC de Evry sous le numéro 844641167, titulaire de la carte de démarchage immobilier pour le compte de la société I@D France SAS.
Mandat : 1945896
Diagnostic de Performance Énergétique (DPE)
Plus d'informations
-
Descriptif
- Étage du bien : 1er
- Ascenseur
- Nbre. d'étages : 6
- Nbre. de chambres : 3
- Nb. de pièces : 4
-
Equipement
- Câble TV
- Digicode
- Chauffage : individuel electrique radiateur
- Interphone
-
Loi ALUR
- Copropriété
- Nombre de lots de la copropriété : 111
- Moyenne de la quote part(an) : 1 793.44 €
-
Etat
- Année de construction : 2004
-
Conditions
- Honoraires à charge de : vendeur
-
Superficies
- Surface habitable : 87 m²
Localisation
Contactez nous
Pour plus d'informations sur cette annonce, n'hésitez pas à nous contacter