Vente
Maison
à
Aucamville
289 000 €
Aucamville (31140)
iad France - Laura Sompayrac vous propose: Maison T4 – 108 m² habitables – Jardin 358 m² – Garage – Située en plein coeur d'Aucamville, tout en étant à l'abri de l'agitation.
Localisation et commodités
• En plein cOEur d’Aucamville avec un environnement calme et agréable.
• Tous commerces, écoles et services accessibles à pied
• Bus à 1 minute (arrêts très proches, lignes vers Toulouse, les quartiers limitrophes et le centre de Fenouillet)
• Métro La Vache – Ligne B : env. 8–10 min en voiture / 15–20 min en bus
• Métro Borderouge – Ligne B : env. 10–12 min en voiture / 20–25 min en bus
• Accès rapide au périphérique toulousain
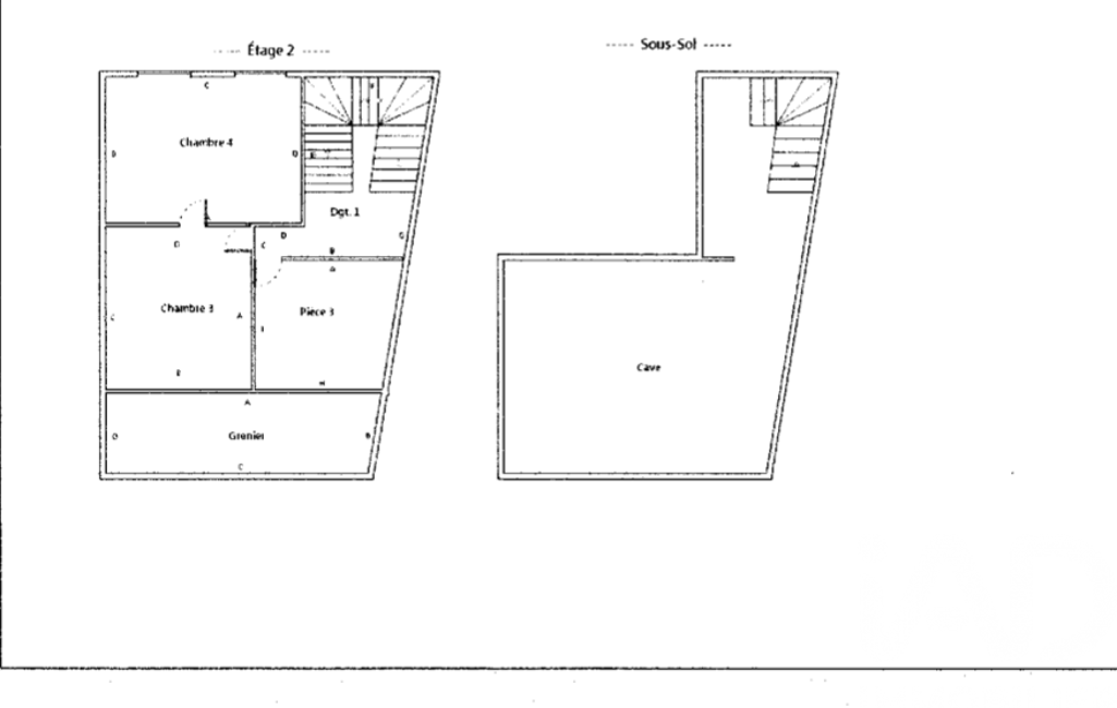
Caractéristiques principales
• Maison de ville entièrement rénovée, années 60
• 108 m² habitables
• Parcelle de 358 m² avec jardin
• Garage
• Climatisation dans chaque pièce
• Panneaux solaires photovoltaïques couplés à un ballon d’eau chaude thermodynamique (production d’eau chaude optimisée, situé à l’étage dans le WC séparé)
•. Un Wc en bas et un WC en haut
Description
Au rez-de-chaussée, vous trouverez un séjour lumineux prolongé par une grande véranda, ainsi qu’une cuisine très spacieuse et entièrement équipée. Le niveau principal comprend également une grande chambre, une salle d’eau équipée d’une douche italienne et d’un WC.
À l’étage, deux chambres en enfilade forment un espace modulable selon les besoins (coin nuit, bureau, salle de jeux…). Possibilité aussi de créer un couloir pour eux accès au besoin. Le niveau est complété par une salle de bains et un WC séparé, où se situe le ballon d’eau chaude thermodynamique.
Le jardin, agréable et facile à entretenir, offre un vrai complément extérieur en centre-ville. Le garage et les équipements récents apportent un confort moderne au quotidien.
À visiter sans tarder !
Honoraires d'agence à la charge du vendeur.
Information d'affichage énergétique sur ce bien : classe ENERGIE B indice 72 et classe CLIMAT A indice 2. Les informations sur les risques auxquels ce bien est exposé, y compris l'obligation légale de débroussaillement, sont disponibles sur le site Géorisques : http://www.georisques.gouv.fr.
La présente annonce immobilière a été rédigée sous la responsabilité éditoriale de Mme Laura Sompayrac mandataire indépendant en immobilier (sans détention de fonds), agent commercial de la SAS I@D France immatriculé au RSAC de Toulouse sous le numéro 981021744, titulaire de la carte de démarchage immobilier pour le compte de la société I@D France SAS.
Mandat : 1885613
Diagnostic de Performance Énergétique (DPE)
Plus d'informations
-
Equipement
- Câble TV
- Chauffage : electrique
-
Descriptif
- Nbre. d'étages : 1
- Nb. de pièces : 4
-
Superficies
- Superficie terrain : 358 m²
- Surface habitable : 108 m²
-
Etat
- Année de construction : 1960
-
Conditions
- Honoraires à charge de : vendeur
Localisation
Contactez nous
Pour plus d'informations sur cette annonce, n'hésitez pas à nous contacter