Vente
Appartement
à
Antibes
1 262 000 €
Antibes (06600)
iad France - Pierre Magerand (06 37 21 92 42) vous propose : Appartement T4 avec rooftop vue mer à Antibes.
Idéalement située boulevard du Val Claret, à proximité immédiate du Fort Carré et du Port Vauban, la résidence contemporaine Vauban Littoral conjugue élégance architecturale et douceur de vivre méditerranéenne. Nichée dans un écrin de verdure à quelques minutes du centre d’Antibes, cette adresse offre un cadre privilégié entre mer et nature. Disponible 2028.
Un appartement d’exception :
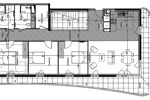
Situé au 3 ème étage, cet appartement T4 de 115 m² environ habitables se prolonge par un balcon de 35 m² environ et une superbe terrasse rooftop de 100 m² environ, offrant une vue imprenable sur la mer et les collines environnantes.
- Séjour/cuisine lumineux de 36 m² environ.
- Trois chambres confortables.
- Deux salles d’eau modernes.
- Accès direct au rooftop, avec possibilité d’installation d’un spa privatif.
- Annexes incluses : deux box et une cave.
De belles prestations :
- Pompe à chaleur collective triple service : chauffage, rafraîchissement et eau chaude sanitaire.
- Volets roulants motorisés et menuiseries aluminium.
- Résidence sécurisée, avec caves fermées, portail électrique et parkings en sous-sol.
L’art de vivre à Antibes :
- À 6 minutes du Vieil Antibes et du musée Picasso.
- À 10 minutes des plages de la Fontonne et du Fort Carré.
- À 20 minutes de l’aéroport Nice Côte d’Azur.
- Proximité immédiate des commerces, écoles et transports.
- Résidence verdoyante à deux pas de la Méditerranée.
N’hésitez pas à me contacter pour plus d’informations ou pour un accompagnement sur mesure.
Honoraires d’agence à la charge du vendeur. Bien non soumis au DPE. Les informations sur les risques auxquels ce bien est exposé sont disponibles sur le site Géorisques : www.georisques.gouv.fr. La présente annonce immobilière a été rédigée sous la responsabilité éditoriale de M. Pierre Magerand EI (ID 86098), mandataire indépendant en immobilier (sans détention de fonds), agent commercial de la SAS I@D France immatriculé au RSAC de Cusset sous le numéro 938729175, titulaire de la carte de démarchage immobilier pour le compte de la société I@D France SAS.
Retrouvez tous nos biens sur notre site internet. www.iadfrance.fr
Mandat : 1866981-22
Diagnostic de Performance Énergétique (DPE)
Plus d'informations
-
Descriptif
- Cave
- Étage du bien : 3eme
- Terrasse
- Ascenseur
- Nbre. d'étages : 3
- Nbre. de chambres : 3
- Nb. de pièces : 4
-
Equipement
- Câble TV
- Digicode
- Interphone
- Climatisation
-
Conditions
- Honoraires à charge de : vendeur
-
Superficies
- Surface habitable : 115 m²
Localisation
Contactez nous
Pour plus d'informations sur cette annonce, n'hésitez pas à nous contacter