Vente
Appartement
à
Nice
1 250 000 €
Nice (06200)
iad France - Denis Kazantsev vous propose: NICE Carras, 267 Promenade des Anglais, un produit d’investissement, 170 m², deux lots à vendre agencés en trois T1, deux T2, deux bureaux avec les dépendances et un jardin de 200 m² environ.
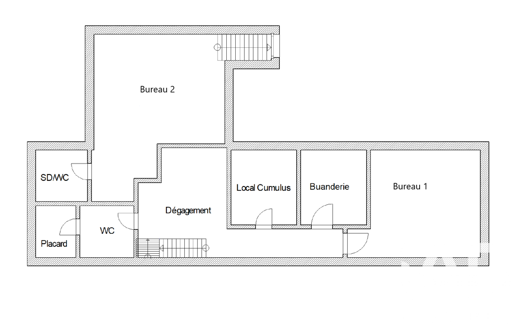
Au rez-de-chaussée : deux appartements T2 et trois appartements T1 indépendants. Au sous-sol deux bureaux, un local technique, une buanderie, une salle de douche et un WC. En tout 120 m² environ habitables et 50 m² environ de dépendances.
Tous les appartements sont rénovés, climatisés, équipés et prêts pour la location. Une buanderie au sous-sol avec le stock de linge permet un fonctionnement optimisé. Le bien est équipé de vidéo-surveillance et de serrures électroniques à code. Un jardin de 200 m² environ et une place de parking en extérieur en jouissance exclusive complètent ce bien.
La presente annonce immobiliere vise 2 lots situés dans une copropriété de 19 lots au total et ne faisant l'objet d'aucune procédure en cours citée à l'article L. 721-1 du code de la construction et de l'habitation. Montant moyen mensuel de charges déclaré par le vendeur : 407.33€ par mois (soit 4888 € annuel). Honoraires d'agence à la charge du vendeur.
Information d'affichage énergétique sur ce bien : classe ENERGIE D indice 228 et classe CLIMAT D indice 36. Les informations sur les risques auxquels ce bien est exposé, y compris l'obligation légale de débroussaillement, sont disponibles sur le site Géorisques : http://www.georisques.gouv.fr.
La présente annonce immobilière a été rédigée sous la responsabilité éditoriale de M Denis Kazantsev mandataire indépendant en immobilier (sans détention de fonds), agent commercial de la SAS I@D France immatriculé au RSAC de NICE sous le numéro 800181109, titulaire de la carte de démarchage immobilier pour le compte de la société I@D France SAS.
Mandat : 1795548
Diagnostic de Performance Énergétique (DPE)
Plus d'informations
-
Equipement
- Alarme
- Câble TV
- Digicode
- Placards
- Chauffage : collectif gaz
- Climatisation
-
Descriptif
- Nbre. d'étages : 3
- Nbre. de chambres : 5
- Nb. Parking : 1
- Nb. de pièces : 11
-
Loi ALUR
- Copropriété
- Nombre de lots de la copropriété : 19
- Moyenne de la quote part(an) : 4 888 €
-
Etat
- Année de construction : 1955
-
Conditions
- Honoraires à charge de : vendeur
-
Superficies
- Surface habitable : 123 m²
Localisation
Contactez nous
Pour plus d'informations sur cette annonce, n'hésitez pas à nous contacter