Vente
Maison
à
Ronquerolles
1 340 000 €
Ronquerolles (95340)
iad France - Doriane Pieragnoli vous propose: Demeure contemporaine de standing aux portes de Ronquerolles – volumes et prestations haut de gamme
À l’entrée de Ronquerolles, dans un environnement résidentiel préservé, cette propriété de 338 m² construite en 2007 développe des espaces généreux et une qualité de prestations recherchée.
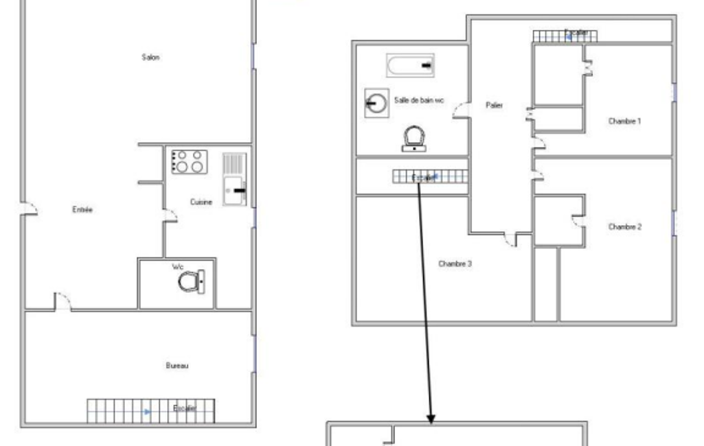
Le rez-de-chaussée s’ouvre sur un séjour de 80 m² en double exposition, offrant luminosité et fluidité des circulations. La cuisine équipée Schmidt de 35 m², indépendante, complète l’espace de réception. Un bureau de 13 m² et des toilettes invités finalisent ce niveau.
À l’étage, une suite parentale de 33 m² avec baignoire, douche à l’italienne et double vasque, deux suites enfants d’environ 20 m² chacune avec salle d’eau, un dressing aménagé de 14 m², une buanderie avec dressing et des toilettes séparées.
Le dernier niveau propose un vaste espace ouvert de 65 m² avec salle d’eau et sanitaires, idéal salle de loisirs ou espace indépendant.
Sous-sol total : garage de 145 m², buanderie avec WC, dressing aménagé de 23 m².
Terrain paysager de 2 600 m² sans vis-à-vis, piscine chauffée 10x5 m et jacuzzi.
Accès rapide à Paris et à l’aéroport Paris-Charles-de-Gaulle, cadre privilégié pour résidence principale ou secondaire.
En résumé :
- Propriété de 338 m² aux volumes remarquables
- Parcelle de 2 600 m² sans vis-à-vis
- Piscine chauffée et espace bien-être
- Sous-sol total avec garage 145 m²
- Accès facilité vers Paris (1heure) et Roissy CDG (35mn)
- Chauffage au sol et climatisation réversible
Honoraires d'agence à la charge du vendeur.
Information d'affichage énergétique sur ce bien : classe ENERGIE C indice 87 et classe CLIMAT C indice 11. Les informations sur les risques auxquels ce bien est exposé, y compris l'obligation légale de débroussaillement, sont disponibles sur le site Géorisques : http://www.georisques.gouv.fr.
La présente annonce immobilière a été rédigée sous la responsabilité éditoriale de Mme Doriane Pieragnoli mandataire indépendant en immobilier (sans détention de fonds), agent commercial de la SAS I@D France immatriculé au RSAC de PONTOISE sous le numéro 897786778, titulaire de la carte de démarchage immobilier pour le compte de la société I@D France SAS.
Mandat : 1948009
Diagnostic de Performance Énergétique (DPE)
Plus d'informations
-
Equipement
- Alarme
- Câble TV
- Chauffage : gaz
- Climatisation
-
Descriptif
- Terrasse
- Nbre. d'étages : 3
- Nbre. de chambres : 5
- Nb. de pièces : 10
-
Superficies
- Superficie terrain : 2600 m²
- Surface habitable : 338 m²
-
Extérieur
- Piscine
-
Etat
- Année de construction : 2007
-
Conditions
- Honoraires à charge de : vendeur
Localisation
Contactez nous
Pour plus d'informations sur cette annonce, n'hésitez pas à nous contacter