Vente
Appartement
à
Toulouse
95 000 €
Toulouse (31200)
iad France - Nadege Andrieu Verger vous propose: T2 idéal investisseur (vendu loué) à la limite entre Toulouse, Aucamville et Launaguet
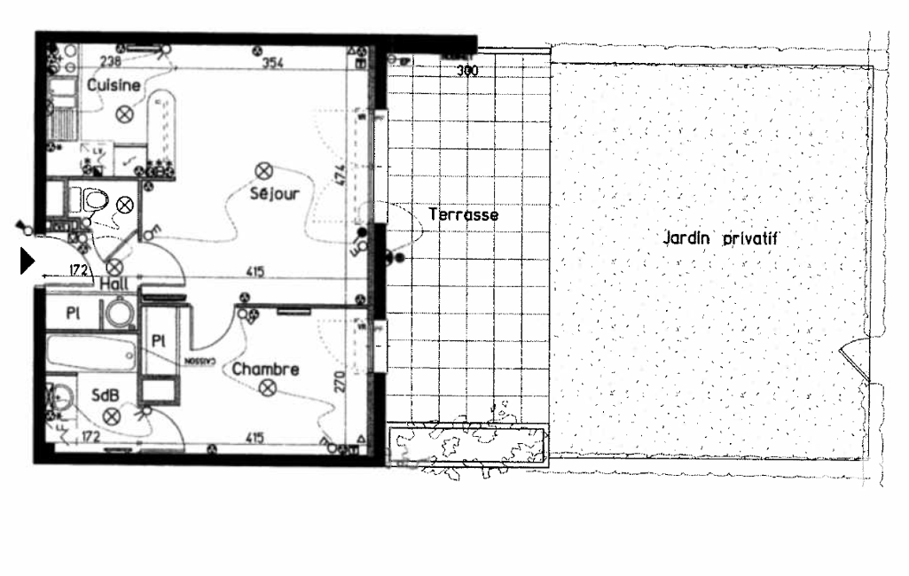
- Cuisine ouverte sur le séjour permettant d’accéder à la terrasse puis au jardin
- Entrée avec placard et WC séparés
- 1 chambre et 1 salle de bain
- à l’extérieur : terrasse de 20m² orientée à l’est, et jardin de 40m².
- 1 place de parking en sous-sol sécurisé
- copro de 50 lots datant de 2006
- très bon emplacement : commerces, station vélib', ligne de bus L10 (Fenouillet - métro La Vache), 36 (Borderouge – La Roseraie) et 60 (Trois cocus – St-Alban) à moins de 10 minutes à pieds
Loyer actuel 512€ + 45€ de provisions de charges.
Taxe foncière 950€ dont 129€ de TEOM
Charges de copropriété annuelles sont de 616€, dont part locataire 440€
Potentiel d’amélioration qui permettra des déductions sur les revenus fonciers
La présente annonce est soumise à la vente Interactive.
Prix de départ : 95000€
La vente interactive est un mode de vente immobilière digitale reposant sur un principe d’enchères en ligne. Elle permet aux acquéreurs de déposer facilement, en ligne, leurs offres d'achat à l'intention du vendeur.
Début des offres d'achat en ligne 17/04/2026 à 19h
Fin des offres d'achat en ligne : 19/04/2026 à 19h
Le vendeur peut contresigner en ligne et à tout moment, toute offre d'achat dont le prix et les conditions lui conviennent.
Il n'est contraint par aucune offre d'achat, quel que soit le montant de celle-ci.
Contactez moi pour organiser une visite
Visite virtuelle disponible sur demande
Professionnels de l’immobilier je suis ouverte à l’interagence
La presente annonce immobiliere vise 2 lots situés dans une copropriété de 118 lots au total et ne faisant l'objet d'aucune procédure en cours citée à l'article L. 721-1 du code de la construction et de l'habitation. Montant moyen mensuel de charges déclaré par le vendeur : 51.33€ par mois (soit 616 € annuel). Honoraires d'agence à la charge du vendeur.
Information d'affichage énergétique sur ce bien : classe ENERGIE C indice 155 et classe CLIMAT A indice 4. Les informations sur les risques auxquels ce bien est exposé, y compris l'obligation légale de débroussaillement, sont disponibles sur le site Géorisques : http://www.georisques.gouv.fr.
La présente annonce immobilière a été rédigée sous la responsabilité éditoriale de Mme Nadege Andrieu Verger mandataire indépendant en immobilier (sans détention de fonds), agent commercial de la SAS I@D France immatriculé au RSAC de TOULOUSE sous le numéro 880399530, titulaire de la carte de démarchage immobilier pour le compte de la société I@D France SAS.
Mandat : 1779444
Diagnostic de Performance Énergétique (DPE)
Plus d'informations
-
Descriptif
- Terrasse
- Ascenseur
- Nbre. de chambres : 1
- Nb. Parking : 1
- Nb. de pièces : 2
-
Loi ALUR
- Copropriété
- Nombre de lots de la copropriété : 118
- Moyenne de la quote part(an) : 616 €
-
Equipement
- Chauffage : individuel electrique
-
Etat
- Année de construction : 2006
-
Conditions
- Honoraires à charge de : vendeur
-
Superficies
- Surface habitable : 43 m²
Localisation
Contactez nous
Pour plus d'informations sur cette annonce, n'hésitez pas à nous contacter