Vente
Maison de maître
à
Gruson
799 000 €
Gruson (59152)
iad France - Blandine PETIT vous propose: MAISON CONTEMPORAINE 160M ² – ENVIRONNEMENT PRIVILÉGIÉ – 4 CHAMBRES – PRESTATIONS HAUT DE GAMME
Dans un secteur résidentiel recherché, cette maison de 2024 réalisée par Piraino Prestige . offre 160 m² habitables. Matériaux de qualité, volumes généreux et fonctionnalité caractérisent cette propriété pensée pour une vie confortable et élégante.
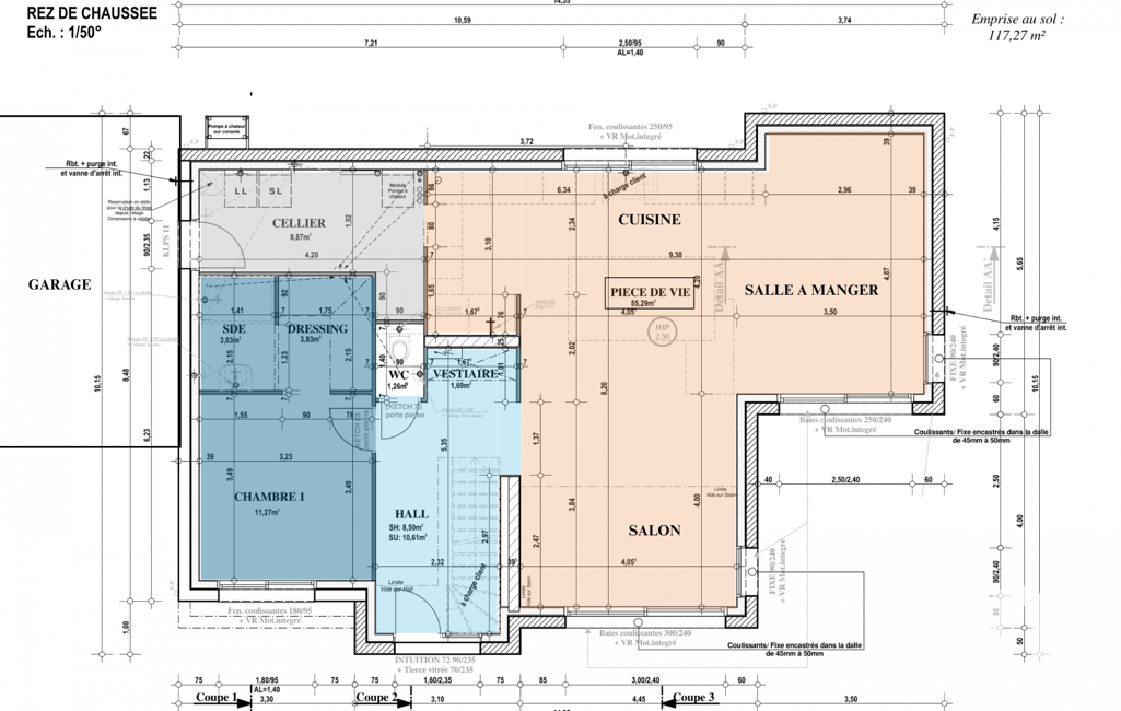
Au rez-de-chaussée :
– Entrée cathédrale et escalier signature
– Pièce de vie lumineuse de plus de 65 m² avec grandes baies vitrées sur terrasses
– Cuisine équipée haut de gamme
– Suite parentale avec dressing et salle d’eau
– Buanderie et accès direct au garage carrelé et isolé
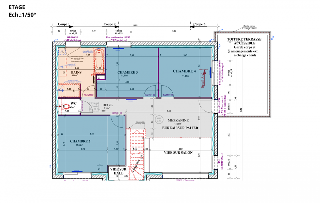
À l’étage :
– Mezzanine ouverte sur séjour
– Trois grandes chambres
– Salle de bain avec douche à l’italienne, baignoire balnéo
– Terrasse privative avec vue dégagée
Les + :
– Pompe à chaleur Daikin connectée
– Récupération d’eau de pluie 10 000 L
– Domotique, alarme, vidéosurveillance
– Grand garage, terrain de pétanque, allée privée
– Parking intérieur sécurisé, portail motorisé
– Maison conforme RE 2020
Visite après validation du projet d’achat.
Honoraires d'agence à la charge de l'acquéreur. Prix honoraires inclus : 799000 euros. Prix hors honoraires : 779000 euros. Honoraires TTC à la charge de l'acquéreur (2,57% du prix du bien hors honoraires) : 20000 euros.
Information d'affichage énergétique sur ce bien : classe ENERGIE A indice 38 et classe CLIMAT A indice 1. Les informations sur les risques auxquels ce bien est exposé, y compris l'obligation légale de débroussaillement, sont disponibles sur le site Géorisques : http://www.georisques.gouv.fr.
La présente annonce immobilière a été rédigée sous la responsabilité éditoriale de Mme Blandine PETIT mandataire indépendant en immobilier (sans détention de fonds), agent commercial de la SAS I@D France immatriculé au RSAC de LILLE sous le numéro 834429706, titulaire de la carte de démarchage immobilier pour le compte de la société I@D France SAS.
Mandat : 1819701
Diagnostic de Performance Énergétique (DPE)
Plus d'informations
-
Descriptif
- Terrasse
- Nbre. d'étages : 2
- Nbre. de chambres : 4
- Nb. de pièces : 6
-
Conditions
- Honoraires : 20 000 €
- Prix hors honoraires acquéreur : 779 000 €
- Honoraires à charge de : acquéreur
-
Equipement
- Digicode
- Interphone
-
Superficies
- Superficie terrain : 650 m²
- Surface habitable : 160 m²
-
Etat
- Année de construction : 2022
Localisation
Contactez nous
Pour plus d'informations sur cette annonce, n'hésitez pas à nous contacter