Vente
Maison de ville
à
Villejuif
772 500 €
Villejuif (94800)
iad France - Fang Zhang vous propose: Située dans un quartier pavillonnaire prisé de Villejuif (94), cette élégante maison individuelle offre une surface de 131 m², édifiée sur un terrain de 244 m².
Elle bénéficie d’un jardin privatif et d’un cadre de vie calme et agréable.
À seulement 2 minutes à pied du métro ligne 7, du futur métro ligne 15 et du tramway T7 (station Louis Aragon), avec liaison directe vers l’aéroport d’Orly.
Rénovation complète en 2024 – DPE : C
Composition du bien :
Rez-de-jardin : 1 chambre, une salle d’eau et des WC
Rez-de-chaussée : séjour lumineux, 1 chambre, cuisine entièrement équipée, WC avec douche
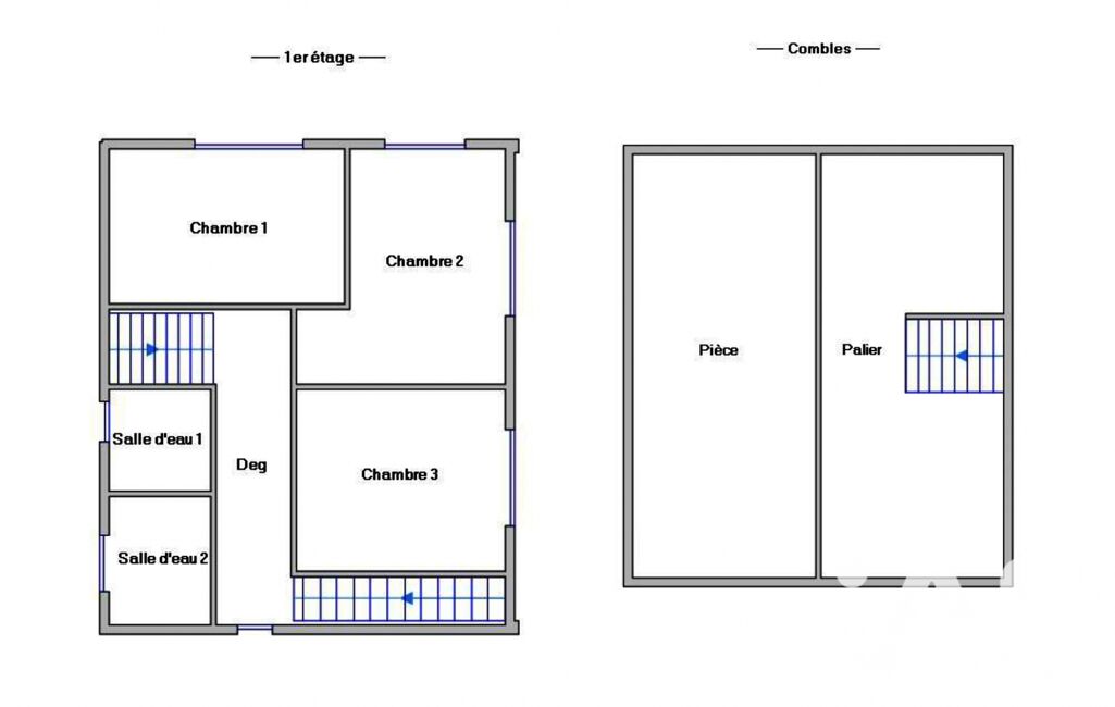
Premier étage : 3 chambres avec cuisine, 2 salles d’eau et 2 WC communs
Combles aménagés : 1 chambre avec cuisine et WC
Une place de parking
, Idéal pour résidence principale, colocation ou investissement locatif
Très fort rendement locatif :
Location Airbnb autorisée toute l’année, avec un revenu mensuel estimé à 6 500 €
Proche des universités, établissements scolaires, commerces et transports, à seulement 4 km de Paris – Porte d’Italie
Permis de construire en cours (PCMI) pour un projet d’environ 160 m² bâtis, avec 137 m² constructibles supplémentaires.
Honoraires d'agence à la charge du vendeur.
Bien non soumis au DPE. Les informations sur les risques auxquels ce bien est exposé, y compris l'obligation légale de débroussaillement, sont disponibles sur le site Géorisques : http://www.georisques.gouv.fr.
La présente annonce immobilière a été rédigée sous la responsabilité éditoriale de Mme Fang Zhang mandataire indépendant en immobilier (sans détention de fonds), agent commercial de la SAS I@D France immatriculé au RSAC de Créteil sous le numéro 513105601, titulaire de la carte de démarchage immobilier pour le compte de la société I@D France SAS.
Mandat : 1932040
Diagnostic de Performance Énergétique (DPE)
Plus d'informations
-
Descriptif
- Nbre. d'étages : 2
- Nbre. de chambres : 6
- Nb. de pièces : 7
-
Superficies
- Superficie terrain : 244 m²
- Surface habitable : 131 m²
-
Equipement
- Chauffage : gaz
-
Etat
- Année de construction : 1998
-
Conditions
- Honoraires à charge de : vendeur
Localisation
Contactez nous
Pour plus d'informations sur cette annonce, n'hésitez pas à nous contacter