Annonce détaillée

Vente
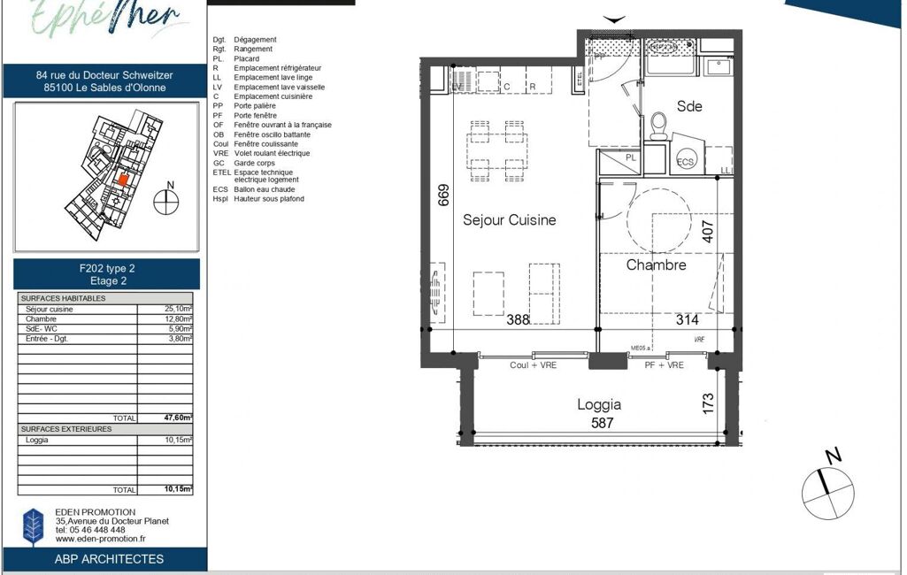
Appartement à Château-d'Olonne
270 000 

Détails du bien

Pièce(s)
2 pièces
Salle(s) de bain
1
Surface
48 m²
Surface terrain
-
Orientation
-

Plus d'informations

  • Descriptif
    • Étage du bien : 2eme
    • Nbre. d'étages : 2
    • Nbre. de chambres : 1
    • Nb. Parking : 1
    • Nb. de pièces : 2
  • Equipement
    • Placards
    • Chauffage : individuel electrique radiateur
    • Interphone
  • Etat
    • Année de construction : 2024
  • Conditions
    • Honoraires à charge de : vendeur
  • Superficies
    • Surface habitable : 48 m²

Localisation

Contactez nous

Pour plus d'informations sur cette annonce, n'hésitez pas à nous contacter

Céline Blot

Annonce 872 / 80643