Vente
Maison
à
La Garenne-Colombes
1 350 000 €
La Garenne-Colombes (92250)
iad France - Patrick Maia vous propose: Située au cOEur du quartier pavillonnaire recherché du centre-ville de La Garenne-Colombes, à proximité immédiate des commerces, des écoles et des transports, cette belle maison familiale traversante de 161m² habitables (250m2 avec annexes) offre de beaux volumes et une luminosité remarquable.
Construite en 2002 et entièrement repeinte en 2025, cette maison séduit par son plan fonctionnel, ses espaces généreux et sa grande pièce de vie.
Dès l’entrée, vous découvrirez une grande chambre de plus de 20m² ouvrant directement sur le jardin, idéale pour : une suite pour invités, un adolescent ou encore une activité professionnelle indépendante.
Ce niveau comprend également : un WC séparé, un garage de 24 m² et l’accès au sous-sol complet. L’ensemble du RDC bénéficie d’un accès direct aux espaces extérieurs, à l’avant et à l’arrière de la maison.
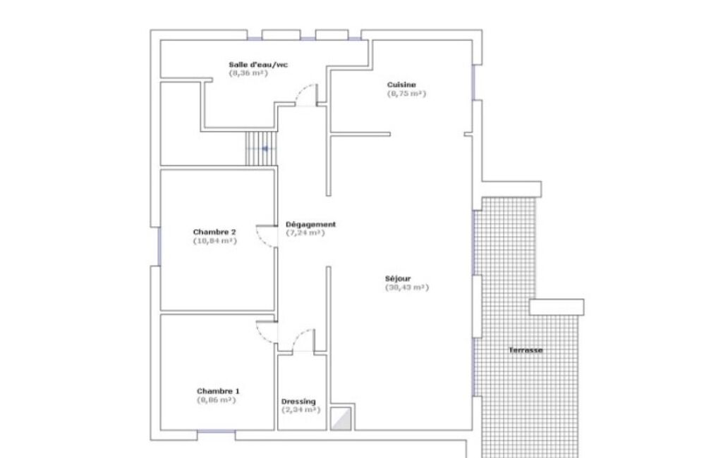
Le premier étage accueille une magnifique pièce de vie de 60 m², baignée de lumière grâce à sa double exposition traversante.
Cet espace convivial comprend : le salon, la salle à manger, une cuisine ouverte entièrement aménagée et équipée, une arrière-cuisine et un WC indépendant. Un véritable espace de réception familial, parfait pour partager des moments avec vos proches.
L’espace nuit au 2ème étage comprend : une grande chambre de 22m2, une suite parentale avec salle de bain, une chambre de 12m2, une salle de bain avec double vasque et un WC séparé. La configuration permet facilement d’imaginer une salle d’eau dans chaque chambre, soit 3 suites parentales.
Le sous-sol d’environ 60 m² offre de nombreux espaces supplémentaires : d’une salle d’eau (communiquant avec la chambre du RDC), une buanderie, une zone de stock et une grande pièce polyvalente (salle de jeux, sport, cinéma…).
La maison dispose d’espaces extérieurs à l’avant et à l’arrière, permettant de profiter d’un coin terrasse et d’un espace jardin.
Un stationnement extérieur est possible en complément du garage.
Vous l’aurez compris, cette maison offre un cadre de vie idéal pour une famille, combinant espace, luminosité et emplacement privilégié.
Les +++ :
-Quartier pavillonnaire recherché : écoles à proximité immédiate, centre-ville, T2 et ligne L à 5mn à pied, accès rapide à La Défense et Saint-Lazare
-Maison traversante et très lumineuse
-Pièce de vie de 60 m²
-4 chambres / suites possibles
-Chambre au rez-de-chaussée avec accès jardin
-Sous-sol complet de 60 m²
-Garage + stationnement extérieur
-Maison repeinte en 2025
-Volets roulants électriques
Besoin de plus d’informations ? Vous souhaitez visiter ce bien ? Je serai ravi de vous présenter cette opportunité exceptionnelle de vie dans un environnement privilégié, alliant confort et qualité de vie. Alors n’hésitez pas, je suis à votre disposition 7j/7 pour vous offrir un service sur mesure.
Honoraires d'agence à la charge du vendeur.
Information d'affichage énergétique sur ce bien : classe ENERGIE D indice 145 et classe CLIMAT D indice 31. Les informations sur les risques auxquels ce bien est exposé, y compris l'obligation légale de débroussaillement, sont disponibles sur le site Géorisques : http://www.georisques.gouv.fr.
La présente annonce immobilière a été rédigée sous la responsabilité éditoriale de M Patrick Maia mandataire indépendant en immobilier (sans détention de fonds), agent commercial de la SAS I@D France immatriculé au RSAC de NANTERRE sous le numéro 884199514, titulaire de la carte de démarchage immobilier pour le compte de la société I@D France SAS.
Mandat : 1946681
Diagnostic de Performance Énergétique (DPE)
Plus d'informations
-
Descriptif
- Cave
- Terrasse
- Nbre. d'étages : 4
- Nbre. de chambres : 4
- Nb. de pièces : 6
-
Equipement
- Alarme
- Chauffage : gaz radiateur
- Interphone
-
Superficies
- Surface terrasse : 34 m²
- Superficie terrain : 220 m²
- Surface habitable : 254 m²
-
Etat
- Année de construction : 2002
-
Conditions
- Honoraires à charge de : vendeur
Localisation
Contactez nous
Pour plus d'informations sur cette annonce, n'hésitez pas à nous contacter