Vente
Maison
à
Bosmie-l'Aiguille
191 000 €
Bosmie-l'Aiguille (87110)
iad France - Charles Lamargot vous propose: Marre des maisons toutes pareilles, sans cachet ni histoire ?
Découvrez cette ancienne auberge de gare en pierre du 19e siècle de 174 m² habitables (203 m² au sol), rénovée avec soin dans l’esprit d’une longère. Située à Bosmie-l’Aiguille, en impasse, et sans vis-à-vis.
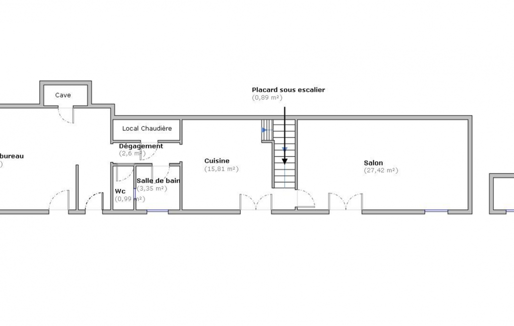
La maison se compose ainsi :
Au RDC : pièce de vie lumineuse de 38 m² avec baies vitrées, cuisine de 16 m², salon de 27 m² avec poêle à bois, WC et petite salle de bain séparée, petite cave troglodyte.
À l’étage : deux chambres de 15 m², dont l'une s’ouvre sur une terrasse de 40 m² avec une belle vue. Bureau/dressing de 11 m², transformable en 5ᵉ chambre. Salle d’eau avec WC refaite à neuf.
Sous combles : deux chambres mansardées de 9 m² et 20 m² (Carrez).
Atelier indépendant : 5 m² en bas, 11 m² à l’étage, servant actuellement de bureau pour travailler au calme, coupé de la maison.
À l’extérieur, on retrouve une grande cour à l’avant de la maison, un petit coin potager sur le côté, ainsi qu’un terrain non attenant de 1 150 m², situé à 200 mètres, idéal pour du jardinage, des loisirs ou du stockage.
La maison jouxte une ligne ferroviaire secondaire (Limoges-Périgueux), avec un passage discret et peu fréquent, sans incidence sur la tranquillité des lieux.
Toiture refaite, assainissement neuf, double vitrage, fibre.
Chauffage mixte bois, fioul, électricité.
Honoraires d'agence à la charge du vendeur.
Information d'affichage énergétique sur ce bien : classe ENERGIE D indice 228 et classe CLIMAT D indice 34. Les informations sur les risques auxquels ce bien est exposé, y compris l'obligation légale de débroussaillement, sont disponibles sur le site Géorisques : http://www.georisques.gouv.fr.
La présente annonce immobilière a été rédigée sous la responsabilité éditoriale de M Charles Lamargot mandataire indépendant en immobilier (sans détention de fonds), agent commercial de la SAS I@D France immatriculé au RSAC de LIMOGES sous le numéro 753051457, titulaire de la carte de démarchage immobilier pour le compte de la société I@D France SAS.
Mandat : 1785951
Diagnostic de Performance Énergétique (DPE)
Plus d'informations
-
Descriptif
- Terrasse
- Nbre. d'étages : 3
- Nbre. de chambres : 4
- Nb. de pièces : 7
-
Superficies
- Superficie terrain : 1350 m²
- Surface habitable : 173 m²
-
Equipement
- Chauffage : fuel radiateur
-
Etat
- Année de construction : 1800
-
Conditions
- Honoraires à charge de : vendeur
Localisation
Contactez nous
Pour plus d'informations sur cette annonce, n'hésitez pas à nous contacter