Vente
Maison
à
Argenteuil
1 350 000 €
Argenteuil (95100)
iad France - Fadila Gasmi vous propose: Maison + atelier pro + bureaux + façade 20 m + secteur passant + potentiel immeuble
Bien rare sur Argenteuil, idéal pour habitation, usage professionnel ou projet immobilier.
Situé sur un axe très passant et à proximité immédiate de grandes enseignes nationales, ce bien offre une visibilité exceptionnelle et un fort potentiel de développement.
PARCELLE DE 558 M²
Le bien est implanté sur une parcelle de 558 m² comprenant :
- Une maison d’habitation
- Un atelier
- Des bureaux
- Des sanitaires
- Des locaux de stockage
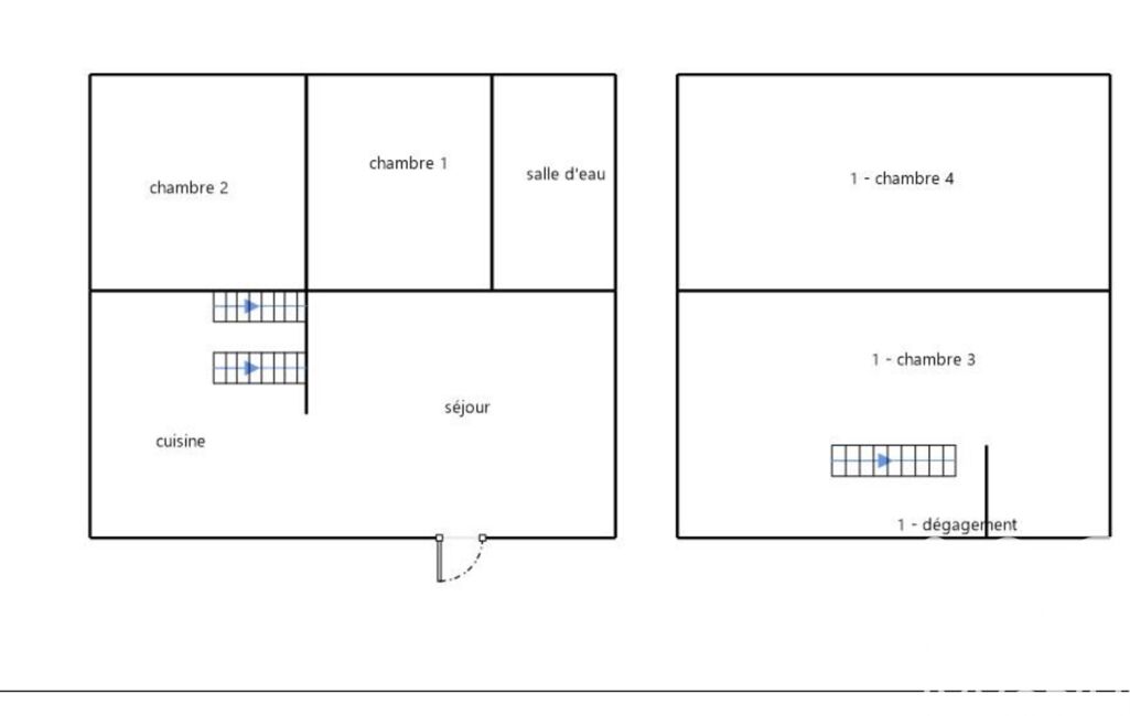
LA MAISON
Maison fonctionnelle et lumineuse composée de :
- Séjour avec cuisine ouverte
- Deux chambres au rez-de-chaussée
- Salle de bain + WC au rez-de-chaussée
- Deux chambres supplémentaires à l’étage
- Jardin agréable et accès direct au terrain
L’ATELIER
- Grand atelier indépendant
- Accès facile pour véhicules
- Bureaux, sanitaires et zones de stockage intégrés
- Usage précédent lié à l’automobile
- Occupation actuelle en fin d’activité (départ en retraite)
- Le bien sera vendu libre de toute occupation
- Vente des murs uniquement
SITUATION ET ACCES
- A proximité immédiate de la gare d’Argenteuil (ligne J)
- Accès rapide aux axes routiers : A15, A86, N315
- Quartier dynamique et très bien desservi
- Environnement attractif avec nombreuses enseignes nationales
POTENTIEL DE CONSTRUCTION
- Possibilité de projet mixte habitation + usage professionnel
- Possibilité de construction d’un immeuble de 4 étages (sous réserve d’autorisations administratives)
- Emplacement premium sur axe très passant
ATOUTS MAJEURS
- Visibilité exceptionnelle
- Secteur recherché
- Potentiel de construction élevé
- Proximité immédiate des transports et des accès routiers
- Bien vendu libre de toute occupation
Honoraires d'agence à la charge du vendeur.
Information d'affichage énergétique sur ce bien : classe ENERGIE G indice 501 et classe CLIMAT G indice 141. Les informations sur les risques auxquels ce bien est exposé, y compris l'obligation légale de débroussaillement, sont disponibles sur le site Géorisques : http://www.georisques.gouv.fr.
La présente annonce immobilière a été rédigée sous la responsabilité éditoriale de Mme Fadila Gasmi mandataire indépendant en immobilier (sans détention de fonds), agent commercial de la SAS I@D France immatriculé au RSAC de NANTERRE sous le numéro 812412401, titulaire de la carte de démarchage immobilier pour le compte de la société I@D France SAS.
Mandat : 1966754
Diagnostic de Performance Énergétique (DPE)
Plus d'informations
-
Descriptif
- Nbre. d'étages : 2
- Nbre. de chambres : 4
- Nb. de pièces : 5
-
Superficies
- Superficie terrain : 558 m²
- Surface habitable : 300 m²
-
Etat
- Année de construction : 1948
-
Conditions
- Honoraires à charge de : vendeur
Localisation
Contactez nous
Pour plus d'informations sur cette annonce, n'hésitez pas à nous contacter