Vente
Appartement
à
Paris
1 328 000 €
Paris (75016)
iad France - Sarah Rozière (06 99 86 19 42) vous propose : Appartement 3 pièces, Paris 16.
Située rue de Passy, la résidence contemporaine N.19 Passy conjugue élégance architecturale et qualité de vie. Entre patrimoine parisien et modernité, cette adresse offre un cadre de vie serein, à proximité immédiate des commerces, des écoles et des transports. Disponible 2026.
Un appartement raffiné :
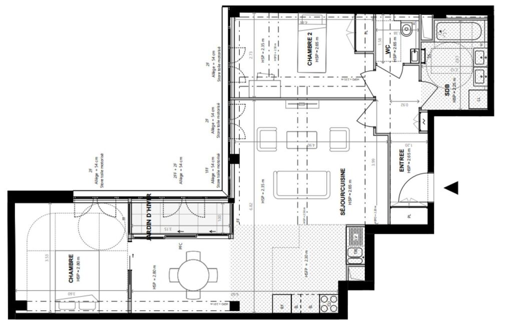
Situé au 4 ème étage, cet appartement T3 de 76 m² environ habitables offre de beaux volumes.
- Séjour/cuisine spacieux et lumineux.
- Deux chambres confortables.
- Salle de bains moderne.
De belles prestations :
- Chauffage collectif raccordée au réseau de chaleur urbain de la Ville de Paris.
- Volets roulants motorisés et grandes baies vitrées favorisant la luminosité.
- Porte palière anti-effraction A2P, digicode, visiophone et badge Vigik.
- Espaces paysagers et toitures végétalisées favorisant la biodiversité.
L’art de vivre à Passy – Paris 16 :
- À 3 min à pied du métro La Muette (ligne 9) et du RER C – Boulainvilliers.
- À deux pas de la Rue de Passy et de ses boutiques emblématiques.
- Quartier résidentiel, alliant élégance, calme et art de vivre parisien.
N’hésitez pas à me contacter pour plus d’informations ou pour un accompagnement sur mesure.
Honoraires d’agence à la charge du vendeur. Bien non soumis au DPE. Les informations sur les risques auxquels ce bien est exposé sont disponibles sur le site Géorisques : www.georisques.gouv.fr. La présente annonce immobilière a été rédigée sous la responsabilité éditoriale de Mlle Sarah Rozière EI (ID 83696), mandataire indépendant en immobilier (sans détention de fonds), agent commercial de la SAS I@D France immatriculé au RSAC de Clermont-Ferrand sous le numéro 978616993, titulaire de la carte de démarchage immobilier pour le compte de la société I@D France SAS.
Retrouvez tous nos biens sur notre site internet. www.iadfrance.fr
Mandat : 1868582-4
Diagnostic de Performance Énergétique (DPE)
Plus d'informations
-
Descriptif
- Étage du bien : 4eme
- Ascenseur
- Nbre. d'étages : 6
- Nbre. de chambres : 2
- Nb. de pièces : 3
-
Equipement
- Câble TV
- Digicode
- Interphone
-
Etat
- Année de construction : 2026
-
Conditions
- Honoraires à charge de : vendeur
-
Superficies
- Surface habitable : 76 m²
Localisation
Contactez nous
Pour plus d'informations sur cette annonce, n'hésitez pas à nous contacter