Vente
Maison de ville
à
Barentin
97 000 €
Barentin (76360)
iad France - Thomas BERTRAND vous propose: BARENTIN – Proche écoles et commodités
Maison de ville à rénover – 2/3 chambres – Grenier - Garage
Située à Barentin, à proximité immédiate des écoles, commerces et transports, cette maison de ville à rénover offre un réel potentiel d’aménagement pour un projet résidentiel ou d’investissement.
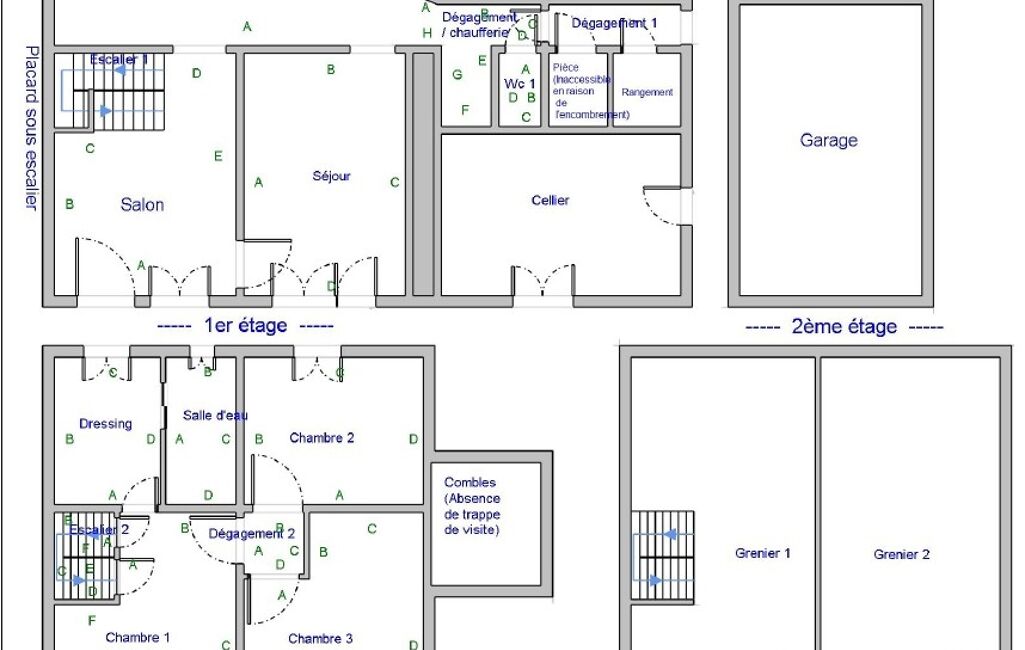
Développant environ 73,38 m² habitables sur trois niveaux, elle se compose au rez-de-chaussée d’une entrée sur salon, d’une salle à manger (avec possibilité d’ouverture entre les deux espaces), d’une cuisine aménagée, d’un WC, d’un espace chaufferie / buanderie ainsi que d’un accès à l’extérieur menant au cellier et au garage.
À l’étage, le palier dessert une première chambre (pouvant être cloisonnée), une grande chambre, ainsi qu’un bureau ou chambre d’enfant. Un espace complémentaire permet l’accès à la salle d’eau avec WC et peut être aménagé en dressing.
Le grenier, d’une surface d’environ 38 m² au sol et divisé en deux pièces, constitue un volume supplémentaire pouvant être exploité.
La situation proche des commodités et la présence d’un garage représentent des atouts appréciables pour le quotidien.
Cette maison conviendra à des acquéreurs souhaitant entreprendre des travaux et valoriser un bien à fort potentiel d’évolution.
Pour plus d’informations ou organiser une visite, n’hésitez pas à me contacter.
Honoraires d'agence à la charge du vendeur.
Information d'affichage énergétique sur ce bien : classe ENERGIE F indice 324 et classe CLIMAT F indice 71. Les informations sur les risques auxquels ce bien est exposé, y compris l'obligation légale de débroussaillement, sont disponibles sur le site Géorisques : http://www.georisques.gouv.fr.
La présente annonce immobilière a été rédigée sous la responsabilité éditoriale de M Thomas BERTRAND mandataire indépendant en immobilier (sans détention de fonds), agent commercial de la SAS I@D France immatriculé au RSAC de le havre sous le numéro 515350676, titulaire de la carte de démarchage immobilier pour le compte de la société I@D France SAS.
Mandat : 1937390
Diagnostic de Performance Énergétique (DPE)
Plus d'informations
-
Descriptif
- Nbre. d'étages : 3
- Nbre. de chambres : 3
- Nb. de pièces : 4
-
Superficies
- Superficie terrain : 20 m²
- Surface habitable : 73 m²
-
Equipement
- Chauffage : gaz
-
Etat
- Année de construction : 1900
-
Conditions
- Honoraires à charge de : vendeur
Localisation
Contactez nous
Pour plus d'informations sur cette annonce, n'hésitez pas à nous contacter