Vente
Duplex
à
Lyon
950 000 €
Lyon (69002)
iad France - Magali Koppe vous propose: Loft confidentiel de 300 m² – Usage mixte – Volumes spectaculaires – Calme – Climatisation – Stationnement
À l’abri de l’agitation, au cOEur du deuxième arrondissement, ce loft hors norme se dévoile derrière la façade élégante d’un immeuble bourgeois parfaitement entretenu.
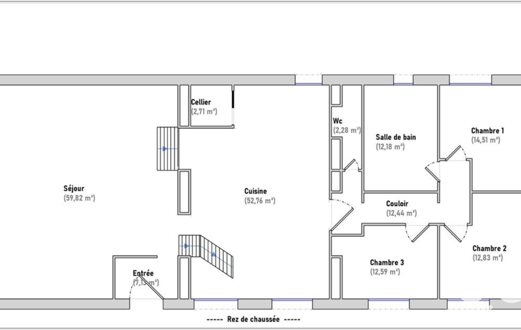
L’accès se fait par une entrée totalement indépendante, donnant la sensation rare d’une maison cachée en pleine ville. Dès les premiers pas, les volumes impressionnent : un espace de vie de près de 110 m², baigné de lumière et sublimé par plus de 4 mètres de hauteur sous plafond, offre un cadre aussi inspirant pour recevoir que pour travailler.
L’architecture est affirmée sans ostentation. Les lignes sont épurées, les matériaux choisis avec exigence, et chaque espace a été pensé pour allier élégance contemporaine, confort et fonctionnalité, sans jamais sacrifier la sérénité.
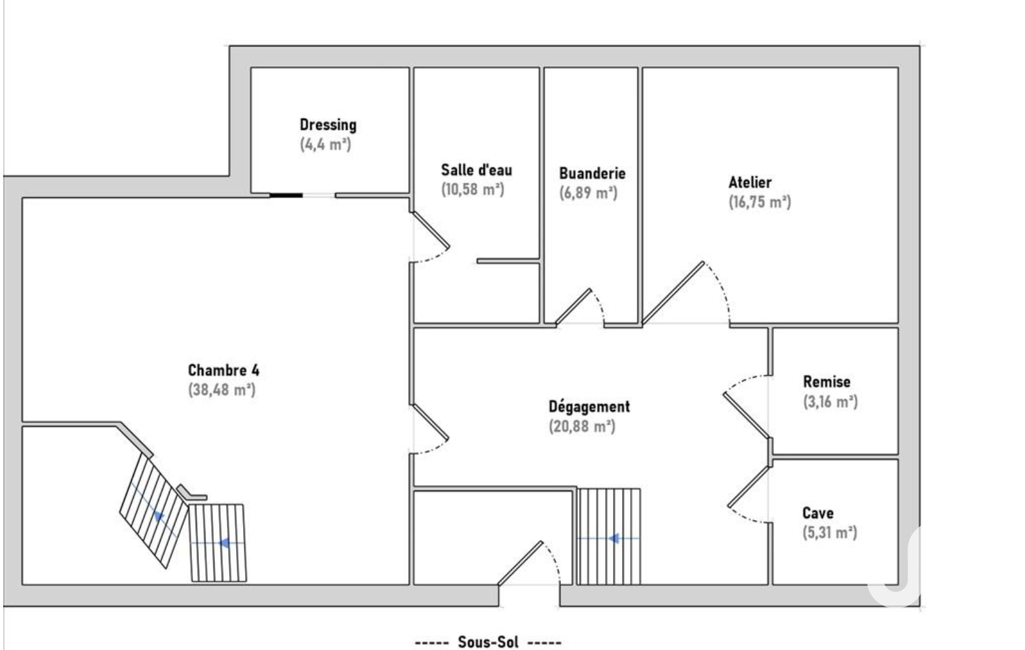
La partie nuit principale accueille trois chambres aux dimensions équilibrées (12 à 14 m²) ainsi qu’une vaste salle de bain. En contrebas, une suite parentale indépendante de plus de 60 m², avec dressing et salle de bain privative, compose un véritable cocon, à l’écart du reste du loft.
Un second volume, accessible directement depuis la cour, vient enrichir le potentiel du bien : bureau bibliothèque de 20 m², buanderie, cave à vins et grand atelier de 25 m². Cet espace, qui peut être totalement autonome, se prête idéalement à une activité professionnelle, tout en permettant un usage mixte habitation/professionnel dans des conditions optimales de calme et de confidentialité.
Ce qui rend ce lieu unique :
- Rénovation haut de gamme, durable et intemporelle
- Volumes exceptionnels et tranquillité absolue
- Stationnement privatif
- Configuration idéale pour un usage mixte
- Climatisation
Un bien rare, atypique et confidentiel, difficilement comparable sur le marché lyonnais.
À proximité immédiate des commerces et transports, ce loft s’adresse à celles et ceux qui recherchent un lieu de vie singulier, capable de s’adapter à des projets personnels et professionnels exigeants, dans un esprit de prestige discret.
La presente annonce immobiliere vise 1 lot situé dans une copropriété de 53 lots au total et ne faisant l'objet d'aucune procédure en cours citée à l'article L. 721-1 du code de la construction et de l'habitation. Montant moyen mensuel de charges déclaré par le vendeur : 227€ par mois (soit 2724 € annuel). Honoraires d'agence à la charge du vendeur.
Information d'affichage énergétique sur ce bien : classe ENERGIE E indice 260 et classe CLIMAT B indice 8. Les informations sur les risques auxquels ce bien est exposé, y compris l'obligation légale de débroussaillement, sont disponibles sur le site Géorisques : http://www.georisques.gouv.fr.
La présente annonce immobilière a été rédigée sous la responsabilité éditoriale de Mme Magali Koppe mandataire indépendant en immobilier (sans détention de fonds), agent commercial de la SAS I@D France immatriculé au RSAC de LYON sous le numéro 831817747, titulaire de la carte de démarchage immobilier pour le compte de la société I@D France SAS.
Mandat : 1934576
Diagnostic de Performance Énergétique (DPE)
Plus d'informations
-
Descriptif
- Ascenseur
- Nbre. d'étages : 4
- Nbre. de chambres : 4
- Nb. de pièces : 8
-
Loi ALUR
- Copropriété
- Nombre de lots de la copropriété : 53
- Moyenne de la quote part(an) : 2 724 €
-
Equipement
- Digicode
- Climatisation
-
Etat
- Année de construction : 1890
-
Conditions
- Honoraires à charge de : vendeur
-
Superficies
- Surface habitable : 299 m²
Localisation
Contactez nous
Pour plus d'informations sur cette annonce, n'hésitez pas à nous contacter