Vente
Maison
à
Port-Saint-Père
320 000 €
Port-Saint-Père (44710)
iad France - Mélanie Mazeret vous propose: PORT-SAINT-PÈRE – Maison familiale au calme – 3 chambres + bureau – Jardin - Dépendance semi ouverte de 19m²
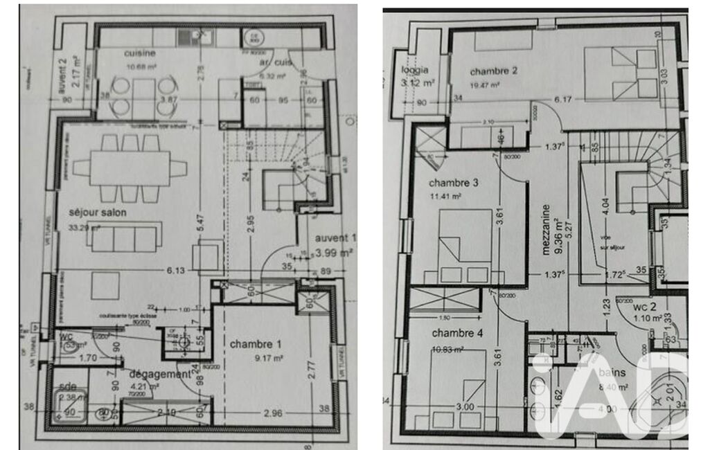
Située dans un environnement calme, à seulement 6 km du bourg, cette maison offre de beaux volumes et un cadre de vie agréable.
Elle se compose au rez-de-chaussée d’un séjour lumineux équipé d’un poêle à granulés, d’une cuisine aménagée accessible par une porte à galandage, prolongée par un cellier/buanderie attenant avec porte de service sur l’extérieur.
Un dégagement dessert un WC indépendant, une salle d’eau ainsi qu’un bureau, cet espace pouvant être repensé pour l'aménagement d'une suite parentale.
Le chauffage au sol apporte un confort optimal sur ce niveau.
À l’étage, vous trouverez une grande chambre parentale de 19 m² avec balcon, deux chambres supplémentaires, une salle de bain à rénover et un WC indépendant.
À l’extérieur, le terrain de 759 m² exposé sud-ouest accueille une terrasse de 35 m², trois places de stationnement, un abri de jardin et une dépendance semi ouverte de 19 m² pouvant être aménagé en atelier. La parcelle permet également la construction d’un garage de 40m².
Arrêt de bus à proximité desservant les écoles du secteur.
SES ATOUTS: Maison fonctionnelle - exposition sud ouest - potentiel évolutif - DPE C
Honoraires d'agence à la charge du vendeur.
Information d'affichage énergétique sur ce bien : classe ENERGIE C indice 142 et classe CLIMAT A indice 5. Les informations sur les risques auxquels ce bien est exposé, y compris l'obligation légale de débroussaillement, sont disponibles sur le site Géorisques : http://www.georisques.gouv.fr.
La présente annonce immobilière a été rédigée sous la responsabilité éditoriale de Mme Mélanie Mazeret mandataire indépendant en immobilier (sans détention de fonds), agent commercial de la SAS I@D France immatriculé au RSAC de NANTES sous le numéro 949186704, titulaire de la carte de démarchage immobilier pour le compte de la société I@D France SAS.
Mandat : 1936719
Diagnostic de Performance Énergétique (DPE)
Plus d'informations
-
Descriptif
- Terrasse
- Nbre. d'étages : 2
- Nbre. de chambres : 3
- Nb. de pièces : 5
-
Superficies
- Surface terrasse : 35 m²
- Superficie terrain : 759 m²
- Surface habitable : 124 m²
-
Equipement
- Câble TV
- Chauffage : electrique
-
Etat
- Année de construction : 2010
-
Conditions
- Honoraires à charge de : vendeur
Localisation
Contactez nous
Pour plus d'informations sur cette annonce, n'hésitez pas à nous contacter