Annonce détaillée

Location
Maison de campagne à Le Vignon-en-Quercy
779  CC /mois

Détails du bien

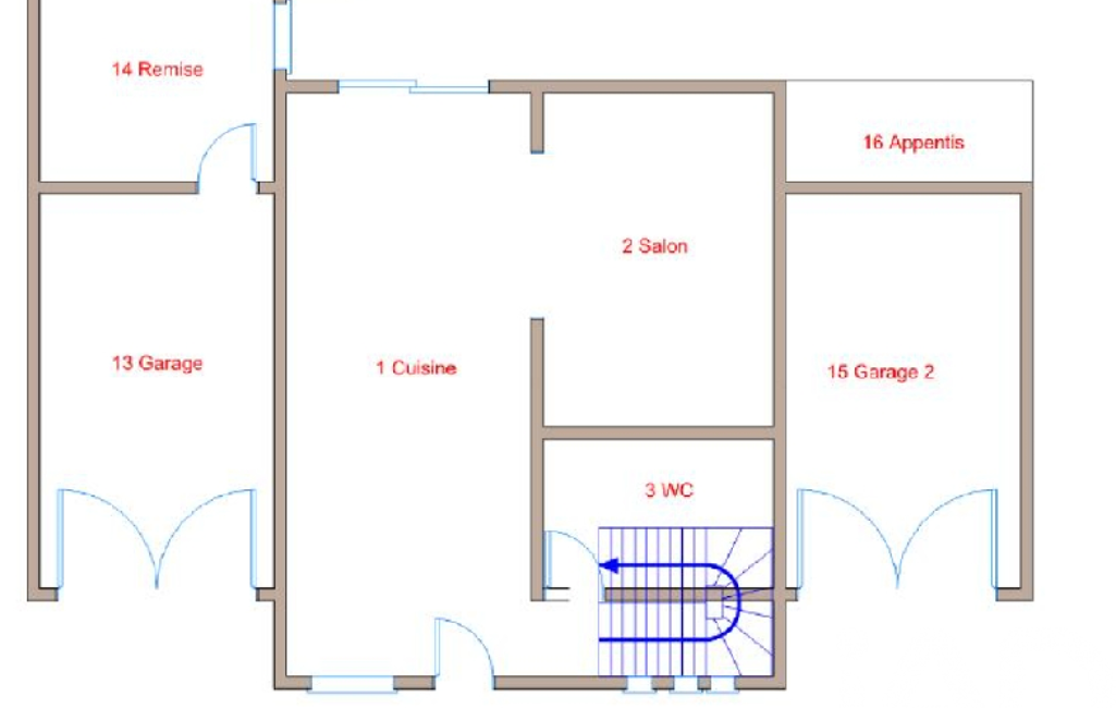
Pièce(s)
6 pièces
Salle(s) de bain
2
Surface
75 m²
Surface terrain
200 m²
Orientation
-

Plus d'informations

  • Descriptif
    • Meublé
    • Terrasse
    • Nbre. d'étages : 1
    • Nbre. de chambres : 2
    • Nb. de pièces : 6
  • Conditions
    • Charges : 29 €
    • Honoraires : 540 €
  • Superficies
    • Superficie terrain : 200 m²
    • Surface habitable : 75 m²
  • Equipement
    • Chauffage : electrique radiateur
  • Etat
    • Année de construction : 1978

Localisation

Contactez nous

Pour plus d'informations sur cette annonce, n'hésitez pas à nous contacter

Céline Caillon

Annonce 847 / 79852