Vente
Appartement
à
Creil
95 000 €
Creil (60100)
iad France - Sofyane Tarraf vous propose: -- T2 à 2min de la gare de CREIL desservant Paris Nord en 25min !! --
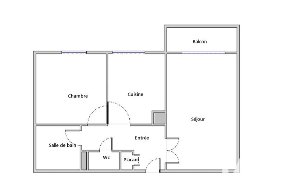
Déposez vos valises dans ce T2 de 39m² situé dans une résidence sécurisée proche de toutes les commodités (écoles, commerces et transports en commun).
Il se compose d'une entrée avec couloir desservant un séjour très lumineux de 15m2 et son balcon exposé plein sud, une cuisine aménagée, une SdB, un wc séparé et une chambre.
1 place de parking et une cave viennent compléter ce bien.
Les charges comprennent TOUT (eau chaude, eau froide, chauffage collectif, gardien, ascenseur).
Les atouts :
- Aucun travaux à prévoir (carrelé, double vitrage avec volets électriques, électricité aux normes)
- Écoles et commerces à 5min à pied
- Gare de CREIL à 1min (desservant Paris Gare du Nord en 25min qui accueillera le TGV Roissy-Picardie fin 2026)
- A1 à 15min avec le péage de Senlis et Roissy à 30min
Ne perdez pas de temps pour me contacter !
La presente annonce immobiliere vise 3 lots situés dans une copropriété de 299 lots au total et faisant l'objet d'une ou plusieurs procédures en cours citée à l'article L. 721-1 du code de la construction et de l'habitation. Montant moyen mensuel de charges déclaré par le vendeur : 200€ par mois (soit 2400 € annuel). Honoraires d'agence à la charge du vendeur.
Information d'affichage énergétique sur ce bien : classe ENERGIE C indice 147 et classe CLIMAT C indice 28. Les informations sur les risques auxquels ce bien est exposé, y compris l'obligation légale de débroussaillement, sont disponibles sur le site Géorisques : http://www.georisques.gouv.fr.
La présente annonce immobilière a été rédigée sous la responsabilité éditoriale de M Sofyane Tarraf mandataire indépendant en immobilier (sans détention de fonds), agent commercial de la SAS I@D France immatriculé au RSAC de COMPIEGNE sous le numéro 888786159, titulaire de la carte de démarchage immobilier pour le compte de la société I@D France SAS.
Mandat : 1900532
Diagnostic de Performance Énergétique (DPE)
Plus d'informations
-
Descriptif
- Cave
- Étage du bien : 1er
- Gardien
- Ascenseur
- Nbre. d'étages : 6
- Nbre. de chambres : 1
- Nb. Parking : 1
- Nb. de pièces : 2
-
Equipement
- Câble TV
- Digicode
- Placards
- Chauffage : collectif gaz radiateur
- Interphone
-
Loi ALUR
- Copropriété
- Nombre de lots de la copropriété : 299
- Moyenne de la quote part(an) : 2 400 €
- Syndic sous procédure d'alerte
-
Etat
- Année de construction : 1975
-
Conditions
- Honoraires à charge de : vendeur
-
Superficies
- Surface habitable : 39 m²
Localisation
Contactez nous
Pour plus d'informations sur cette annonce, n'hésitez pas à nous contacter