Vente
Maison
à
La Couarde-sur-Mer
1 390 000 €
La Couarde-sur-Mer (17670)
iad France - Valérie Evano vous propose: ILE DE RE - LA COUARDE SUR MER
Alliance parfaite entre charme authentique et confort contemporain
À quelques pas des plages et des commerces, cette magnifique maison conjugue avec élégance cachet traditionnel et prestations haut de gamme, pour un cadre de vie aussi chaleureux que raffiné.
Parfaite en résidence principale comme en pied-à-terre de charme, elle séduira les amateurs d’authenticité et de confort moderne.
Dès l’entrée, vous serez accueilli par un bel espace qui s’ouvre, au choix, sur un jardin intime joliment végétalisé et sa grande terrasse, ou sur une très belle pièce de vie baignée de lumière. La cuisine ouverte, parfaitement intégrée, devient naturellement le cOEur convivial de la maison.
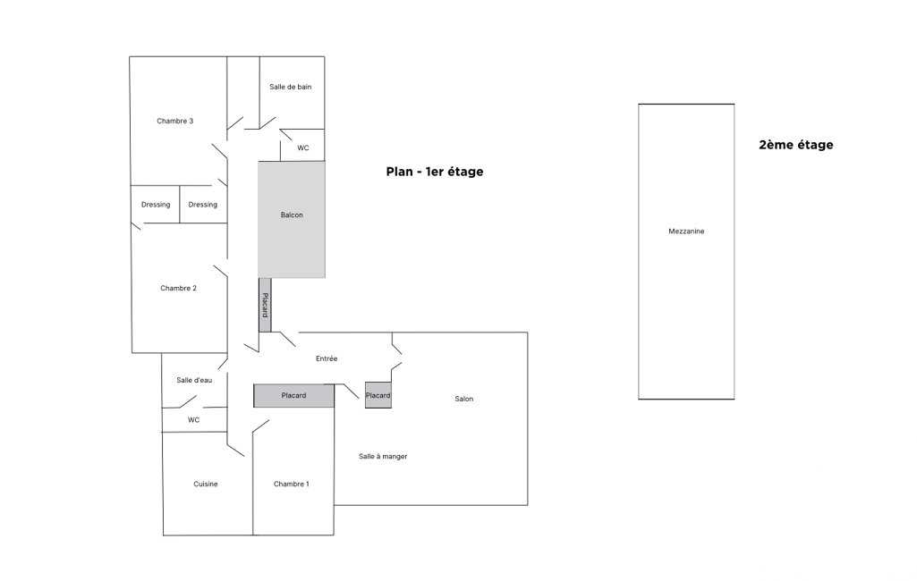
Côté nuit, deux superbes suites parentales offrent chacune un véritable cocon :
– Au rez-de-chaussée, une suite avec salle de bains, douche, WC et dressing,
– À l’étage, une seconde suite avec salle d’eau, WC, dressing et une vue imprenable sur les toits du village, est prolongée par un espace bureau.
Une troisième chambre, également en rez-de-chaussée, dispose de sa propre salle d’eau avec douche et vasque, et un accès direct au jardin.
En complément, une cave aménagée et un garage, rares en plein centre village, viennent parfaire les prestations de ce bien unique.
Un véritable coup de cOEur à découvrir sans tarder ! »
Honoraires d'agence à la charge du vendeur.
Information d'affichage énergétique sur ce bien : classe ENERGIE D indice 207 et classe CLIMAT B indice 7. Les informations sur les risques auxquels ce bien est exposé, y compris l'obligation légale de débroussaillement, sont disponibles sur le site Géorisques : http://www.georisques.gouv.fr.
La présente annonce immobilière a été rédigée sous la responsabilité éditoriale de Mme Valérie Evano mandataire indépendant en immobilier (sans détention de fonds), agent commercial de la SAS I@D France immatriculé au RSAC de LA ROCHELLE sous le numéro 825235690, titulaire de la carte de démarchage immobilier pour le compte de la société I@D France SAS.
Mandat : 1966579
Diagnostic de Performance Énergétique (DPE)
Plus d'informations
-
Descriptif
- Cave
- Nbre. d'étages : 2
- Nbre. de chambres : 3
- Nb. de pièces : 6
-
Equipement
- Câble TV
- Cheminée
- Chauffage : electrique radiateur
-
Superficies
- Superficie terrain : 271 m²
- Surface habitable : 164 m²
-
Etat
- Année de construction : 2015
-
Conditions
- Honoraires à charge de : vendeur
Localisation
Contactez nous
Pour plus d'informations sur cette annonce, n'hésitez pas à nous contacter