Vente
Appartement
à
Marseille
1 484 000 €
Marseille (13008)
iad France - Sarah Rozière (06 99 86 19 42) vous propose : La Marsa – Penthouse d’exception sur l’avenue du Prado.
Sur la mythique avenue du Prado, la résidence La Marsa, signée PietriArchitectes, s’inspire des demeures prestigieuses de la fin du XIXe siècle et des villages balnéaires méditerranéens. Une architecture blanche, lumineuse, bordée de terrasses filantes : un projet pensé comme une OEuvre d’art habitée.
Un dernier étage :
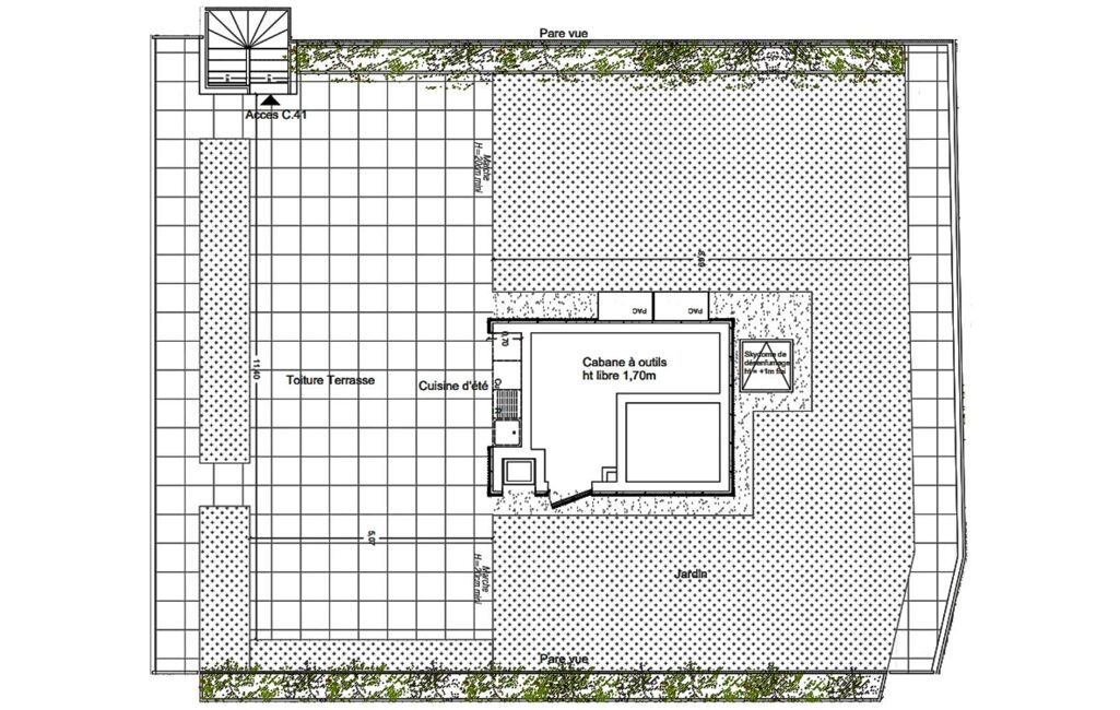
Au dernier étage, ce penthouse de 150 m² environ s’ouvre sur des volumes spectaculaires et bénéficie d’une triple orientation baignée de lumière.
La pièce de vie se prolonge sur de vastes extérieurs conçus comme de véritables salons à ciel ouvert.
L’ensemble offre plus de 220 m² environ de terrasses et jardins suspendus, dont un roof-top privatif aménageable avec cuisine d’été – rare au cOEur du 8 ème arrondissement.
Prestations et confort :
- Résidence sécurisée et intimiste.
- Finitions haut de gamme.
- Garages fermés en sous-sol.
- Jardins et terrasses équipés pour une vie intérieure / extérieure toute l’année.
À deux pas du Parc Borély et des plages du Prado, La Marsa conjugue la sérénité d’un quartier résidentiel et l’effervescence d’une grande métropole : restaurants étoilés, commerces raffinés, galeries d’art et établissements scolaires d’excellence.
La Marsa – L’art de vivre méditerranéen :
Un penthouse rare, conjuguant emplacement iconique, architecture de caractère et extérieurs d’exception.
Un bien exclusif, pensé pour une clientèle en quête d’un art de vivre intemporel.
N’hésitez pas à me contacter pour plus d’informations ou pour un accompagnement sur mesure.
Honoraires d’agence à la charge du vendeur. Bien non soumis au DPE. Les informations sur les risques auxquels ce bien est exposé sont disponibles sur le site Géorisques : www.georisques.gouv.fr. La présente annonce immobilière a été rédigée sous la responsabilité éditoriale de Mlle Sarah Rozière EI (ID 83696), mandataire indépendant en immobilier (sans détention de fonds), agent commercial de la SAS I@D France immatriculé au RSAC de Clermont-Ferrand sous le numéro 978616993, titulaire de la carte de démarchage immobilier pour le compte de la société I@D France SAS.
Retrouvez tous nos biens sur notre site internet. www.iadfrance.fr
Mandat : 1822828-2
Diagnostic de Performance Énergétique (DPE)
Plus d'informations
-
Descriptif
- Étage du bien : 3eme
- Terrasse
- Ascenseur
- Nbre. d'étages : 3
- Nbre. de chambres : 4
- Nb. de pièces : 5
-
Equipement
- Câble TV
- Digicode
- Interphone
- Climatisation
-
Etat
- Année de construction : 2026
-
Conditions
- Honoraires à charge de : vendeur
-
Superficies
- Surface habitable : 149 m²
Localisation
Contactez nous
Pour plus d'informations sur cette annonce, n'hésitez pas à nous contacter